Варианты эскизных проектов дома
Если только задумали строительство частного дома, но хотите сделать это уже в этом году, то стоит поторопиться. Поторопиться с проектированием. И первый его этап - эскизный проект. Надеемся, что вы разделяете наше мнение о том, что построить свой долгожданный дом - как эмоционально, так и финансово весьма затратное мероприятие. Поэтому экономить на проектировании здесь не совсем уместно.
Только грамотно изготовленный индивидуальный проект дома поможет сохранить ваши нервы и кошелек на этапе строительных работ. Мы об этом уже рассказывали на странице "Заказать полный проект дома". Ну а как проверить качество проектной документации исходя из простых критериев почитайте на странице "Как определить качество проекта"
Речь сейчас пойдет о самом первом этапе индивидуального проектирования - эскизном.
Исходя из многолетнего опыта и периодически повторяющихся пожеланий клиентов относительно состава ЭП, мы создали 3 варианта эскизного проекта. Только в нашей архитектурной мастерской клиенту изначально предлагается для заказа проектирования на выбор несколько комплектаций эскизного проекта.
Мы за то, чтобы качественное проектирование было доступно большему количеству индивидуальных застройщиков, поэтому в нашей мастерской клиент выбирает стоимость и свой эскизный проект самостоятельно, при этом не переплачивая за лишнее.
3 комплектации - 3 стоимости эскизного проекта
Ниже покажем чем отличается та или иная комплектация эскизного проекта дома. Как это отражается на его итоговой стоимости. Что получит при заказе работы клиент - какой состав проекта и глубину его проработки.
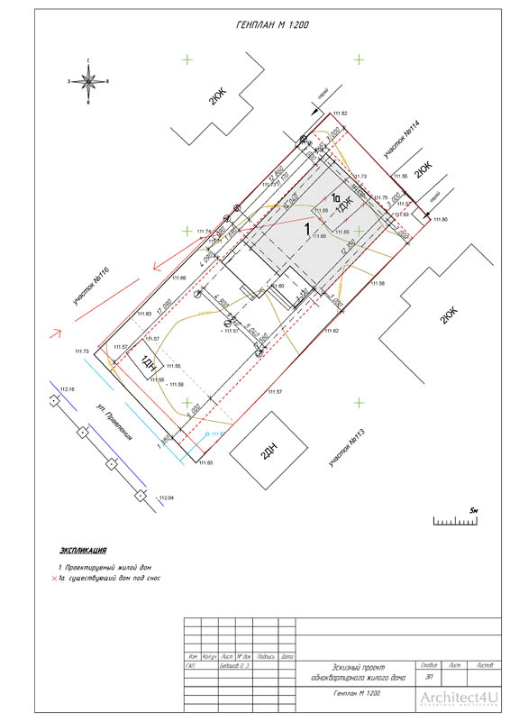
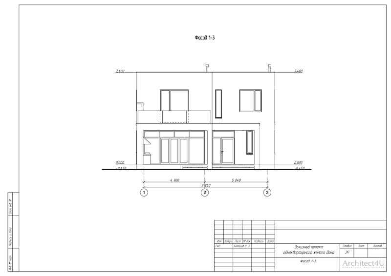
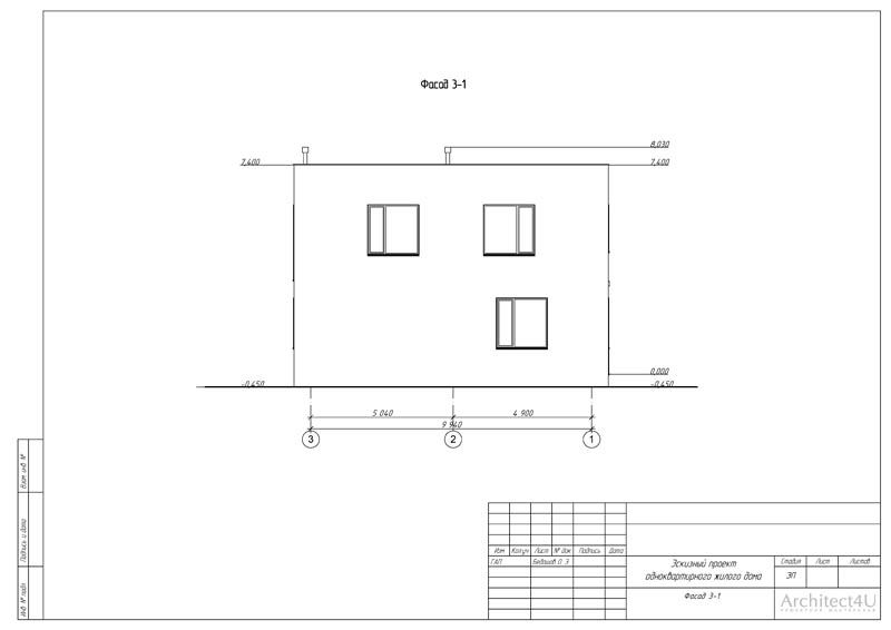
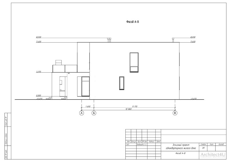
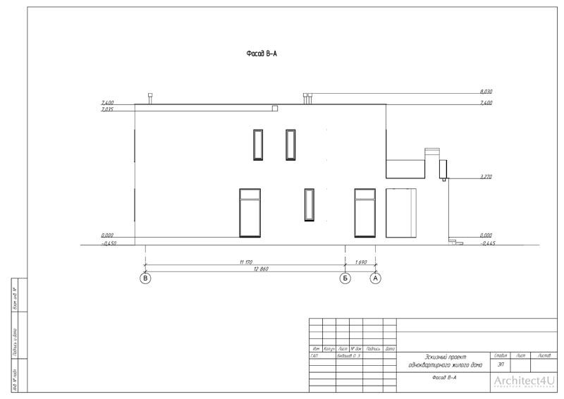
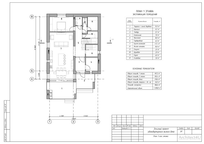
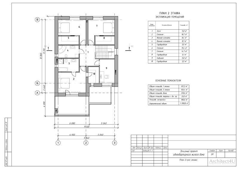
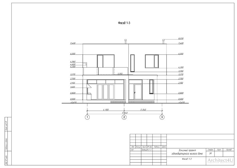
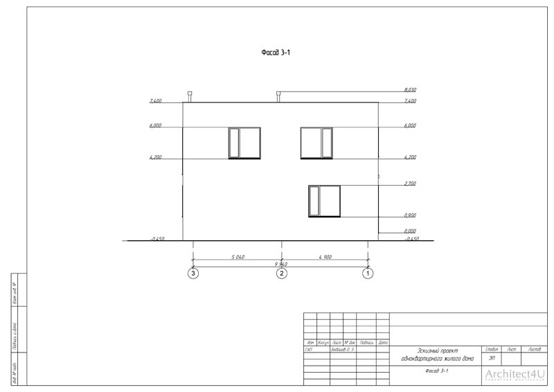
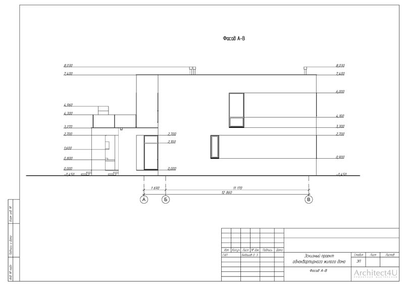
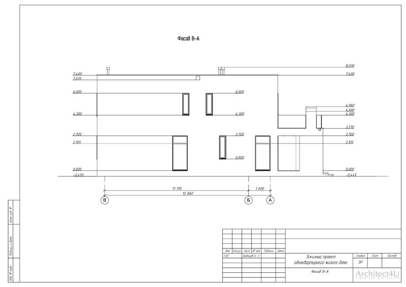
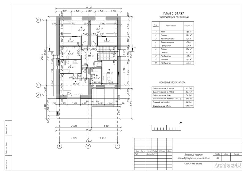
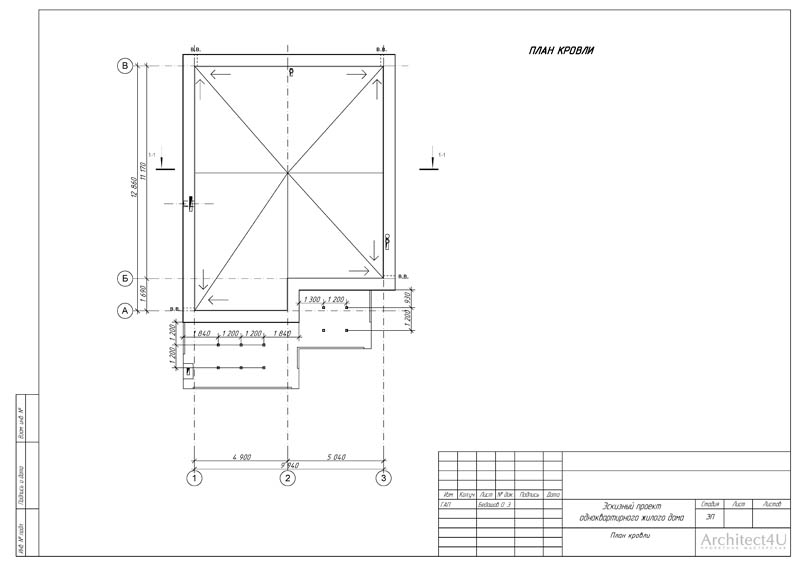
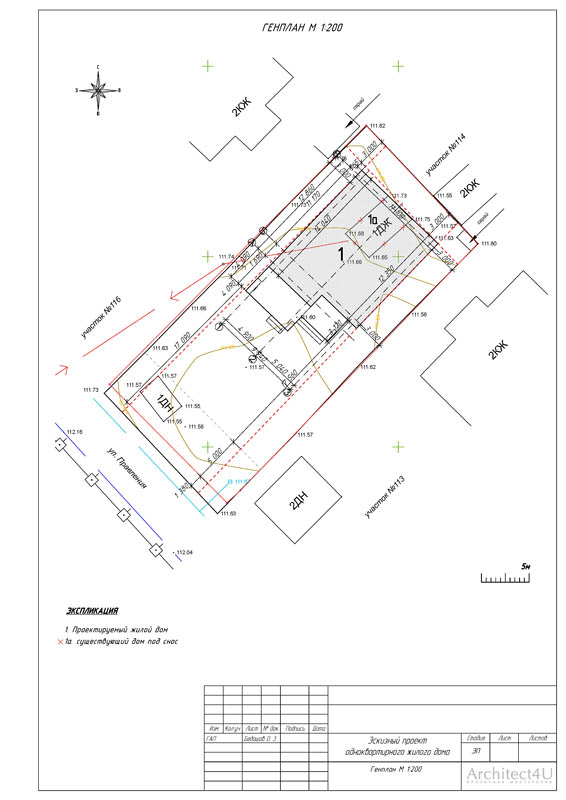
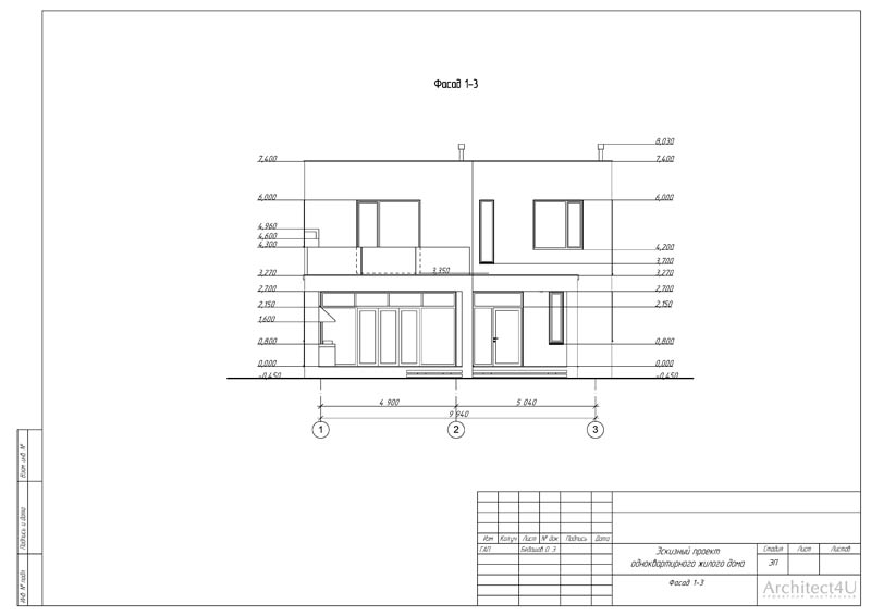
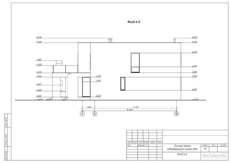
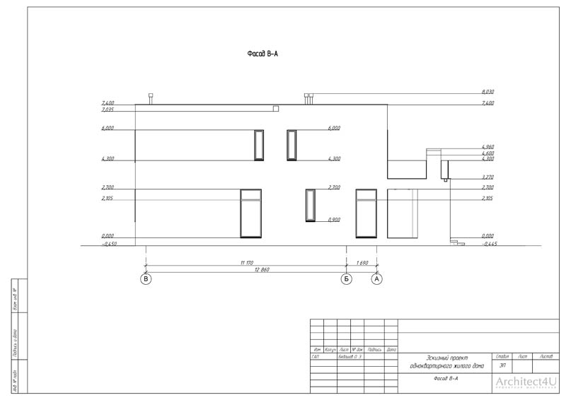
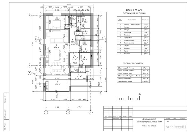
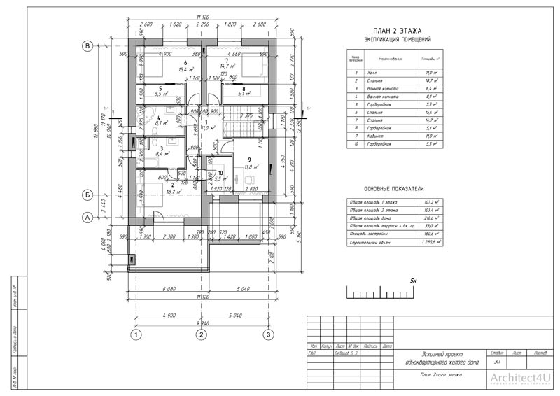
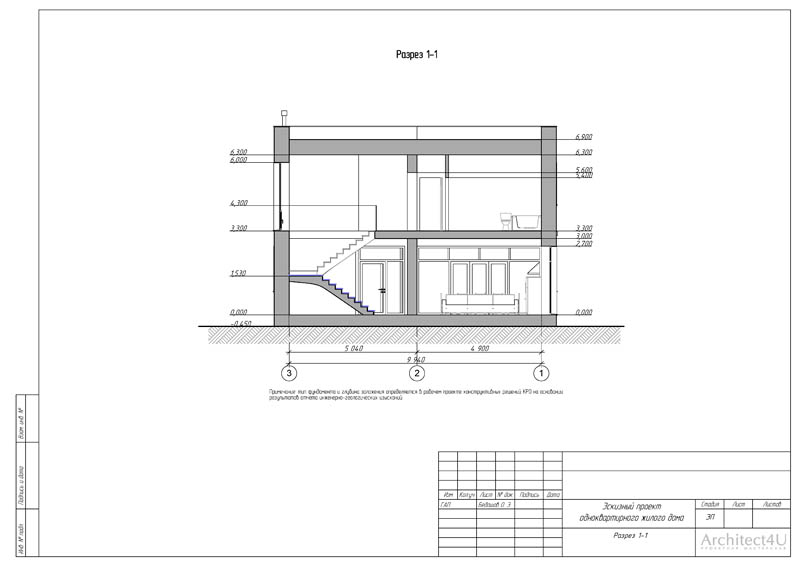
Для наглядности и удобства сравнения комплектаций мы взяли ранее разработанный проект каменного двухэтажного дома в современном стиле, общей площадью 243 кв.м. и проработали ЭП в трех вариантах
Варианты комплектации ЭП для заказа
- Упрощенный вариант эскизного проекта













- 114300 руб.
- Заказать
- Базовый вариант эскизного проекта














- 143400 руб.
- Заказать
- Расширенный вариант эскизного проекта






















- 182300 руб.
- Заказать
Узнайте стоимость своего проекта
Цены в примерах выше актуальны для индивидуального проектирования дома общей площадью 243 кв.м. по состоянию на весну 2022 года. Стоимость изготовления вашего проекта рассчитывается индивидуально на основании техзадания.
Необходимые данные - как заказать эскизный проект
После выбора необходимой вам комплектации, нам необходимо определить стоимость проектных работ по вашему дому - подготовить коммерческое предложение. Для этого cкачайте и заполните "Техническое задание на проектирование дома".
Заполненное ТЗ можно направить на электронную почту, либо в мессенджер. Для изготовления эскизного проекта необходимо предоставить геодезическую топосъемку земельного участка. Если ее у вас на данный момент нет в наличии, то можете заказать в любой геодезической организации, либо через наших партнеров.












