Проектирование магазинов
Титульный лист проектной документации магазина

Общие данные по рабочим чертежам
.jpg)
План обмерный
.jpg)
План демонтажа
.jpg)
План возводимых перегородок
.jpg)
План расстановки оборудования
.jpg)
Спецификация оборудования
.jpg)
Фасад в осях 1-2. Разрезы 1-1, 2-2
.jpg)
План полов
.jpg)
План потолков
.jpg)
План расстановки розеток и видеокамер наблюдения
.jpg)
Примечание к плану расстановки розеток и видеокамер наблюдения
.jpg)
План расположения осветительного оборудования
.jpg)
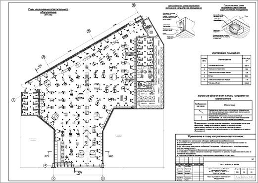
План нацеливания осветительного оборудования
.jpg)
План аудио-видео оборудования магазина. Схема подключения аудио-видео оборудования
.jpg)
План противокражного оборудования магазина. Схема подключения противокражного оборудования
.jpg)
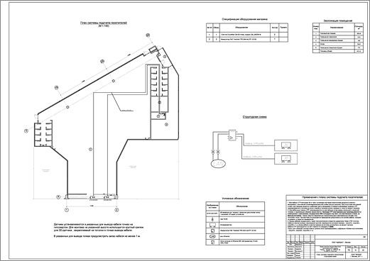
План системы подсчета посетителей магазина. Структурная схема
.jpg)
Схема металлического каркаса примерочных кабин Adidas (SPCS)
.jpg)
Схема металлического каркаса примерочных кабин Adidas (SPCS)
.jpg)
Схема крепления световых полос Adidas SPCS Core
.jpg)
Фотопримеры магазинов Adidas
.jpg)