Проект торгового павильона в Балашихе
Проектирование зданий | Архитектура и дизайн
| Местоположение | Московская обл., Балашиха |
| Проектирование | 2009 г. |
| Заказчик | Частное лицо |
| Общая площадь | 312,4 кв.м |
| Стиль | Современный |
| Отделка фасадов | Вентфасад, алюминиевые композитные панели |
Объект
Земельный участок, отведенный под строительство здания торогового павильона, расположен в городе Балашиха в микрорайоне Гагарина. Проектируемое здание решено в два уровня. Отделка фасада - алюминиевые композитные панели, керамогранитная плитка (по технологии вентилируемый фасад), отделка цокольной части здания плиткой из натурального камня - гранит.
Ситуационный план
Генеральный план
3D визуализация здания. Вид на главный фасад
Эскизный проект (АГР здания)

Общая пояснительная записка к эскизному проекту здания
.jpg)
Ситуационный план. Выкопировка из земель города
.jpg)
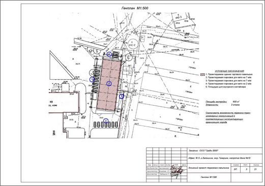
Генеральный план в М1:500
.jpg)
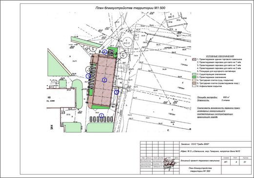
План благоустройства территории в М1:500
.jpg)
3D визуализация здания. Вид 1
.jpg)
3D визуализация здания. Вид 2
.jpg)
3D визуализация здания. Вид 3
.jpg)
Чертеж фасада
.jpg)
Чертеж фасада
.jpg)
Чертеж фасада
.jpg)
Чертеж фасада
.jpg)
Цветовое решение дизайна фасада
.jpg)
Цветовое решение дизайна фасада
.jpg)
Цветовое решение дизайна фасада
.jpg)
Цветовое решение дизайна фасада
.jpg)
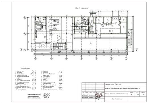
Чертеж плана первого этажа
.jpg)
Чертеж плана второго этажа
.jpg)
Схема междуэтажного перекрытия
.jpg)
Разрез
.jpg)
Чертеж плана кровли
.jpg)
Общие пояснения к отделке фасадов