Проект реконструкции здания
Проектирование и реконструкция зданий | Архитектура и дизайн
| Местоположение | Московская обл., Балашиха |
| Проектирование | 2010 г. |
| Заказчик | Организация |
| Общая площадь | 1 449,3 кв.м |
| Стиль | Современный |
| Отделка фасадов | Вентфасад, алюминиевые композитные панели |
Объект
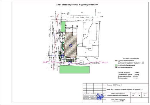
Здание расположено в городе Балашиха на улице Западная, рядом с Горьковским шоссе. Заказчик поставил перед архитекторами задачу дизайна фасадов, реконструкции входных групп, перепланировки и переоборудования внутренних помещений. При отделке фасадов были использованы алюминиевые композитные панели. На данный момент все строительные и отделочные работы завершены.
Ситуационный план
Фотография здания до реконструкции
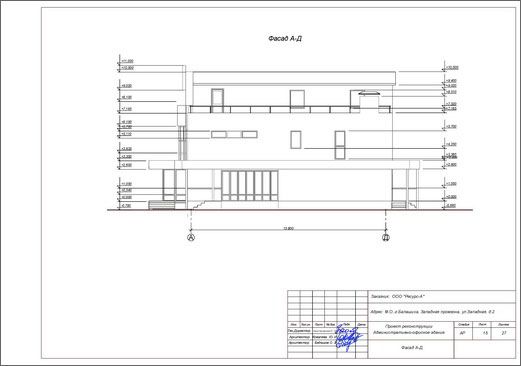
Главный и боковой фасады
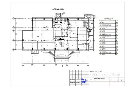
План первого этажа
Фотография офисного здания после реконструктивных работ. Источник Яндекс панорамы 2015
Архитектурный проект реконструкции (П)
.jpg)
.jpg)
.jpg)
.jpg)
.jpg)
.jpg)
.jpg)
.jpg)
.jpg)