эо

Проект инженерных решений

Индивидуальное проектирование частных жилых домов

Электрооборудование

Состав проекта

Ниже приводим список, что включает в себя проект электрооборудования.

  • общие данные
  • пояснительная записка
  • принципиальная схема щита ГРЩ
  • принципиальные схемы РЩ
  • поэтажные планы питающей сети
  • поэтажные планы сети освещения
  • поэтажные планы розеточной сети
  • планы теплых полов (при необходимости)
  • планы дополнительной системы уравнивания потенциалов
  • схема решения заземления
  • схема решения молниезащиты
  • таблицы спецификации оборудования и материалов

Пример проекта электрооборудования (ЭО)


обложка
Титульный лист
общие данные
Общие данные
общие данные
Общие данные
пз
Пояснительная записка
Пояснительная записка
Пояснительная записка
Принципиальная схема щита ГРЩ
Принципиальная схема щита ГРЩ
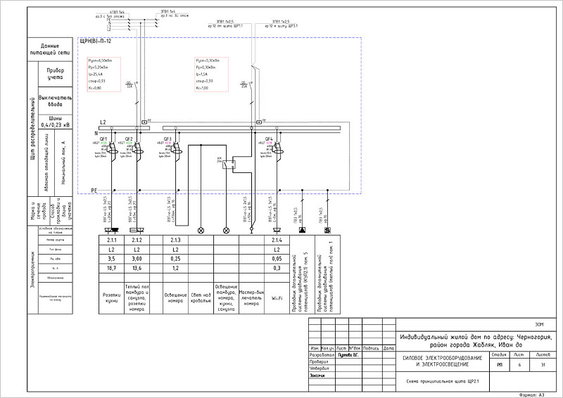
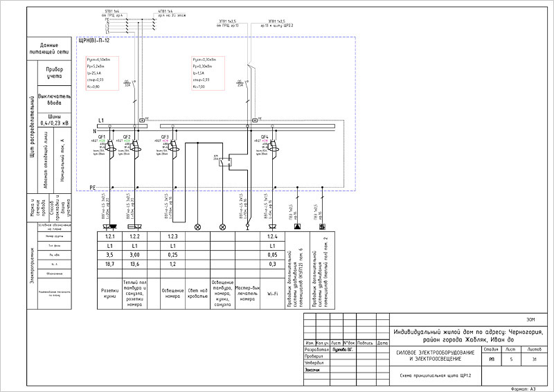
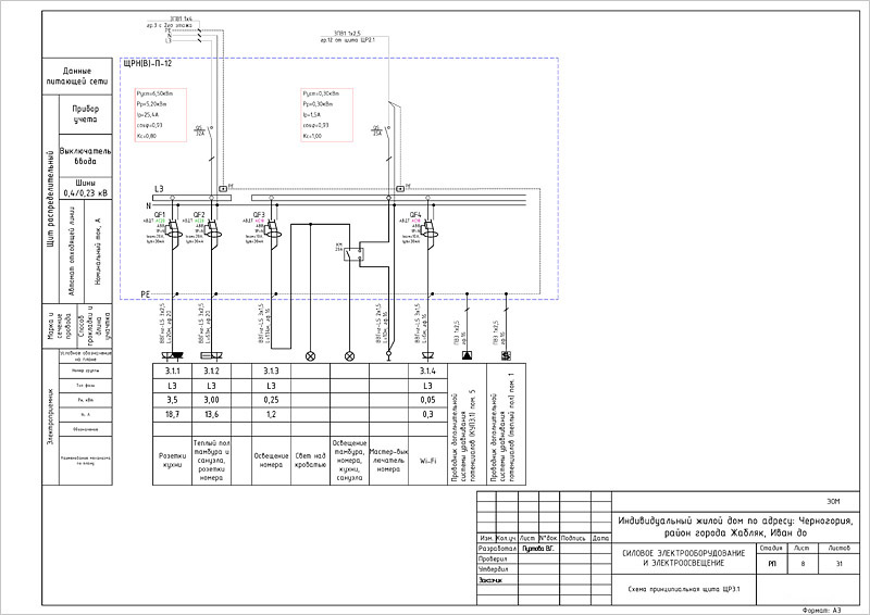
Принципиальная схема щита РЩ
Принципиальная схема щита РЩ1
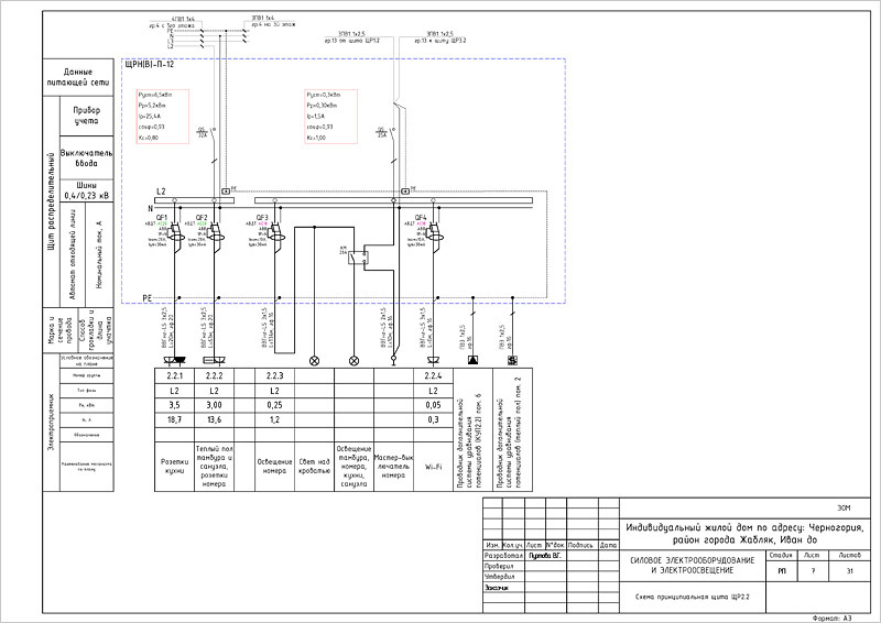
Принципиальная схема щита РЩ2
Принципиальная схема щита РЩ2
Принципиальная схема щита РЩ3
Принципиальная схема щита РЩ3
Принципиальная схема щита РЩ4
Принципиальная схема щита РЩ4
Принципиальная схема щита РЩ5
Принципиальная схема щита РЩ5
Принципиальная схема щита РЩ6
Принципиальная схема щита РЩ6
Принципиальная схема щита РЩ7
Принципиальная схема щита РЩ7
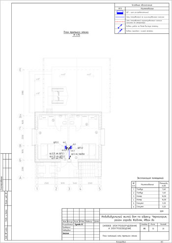
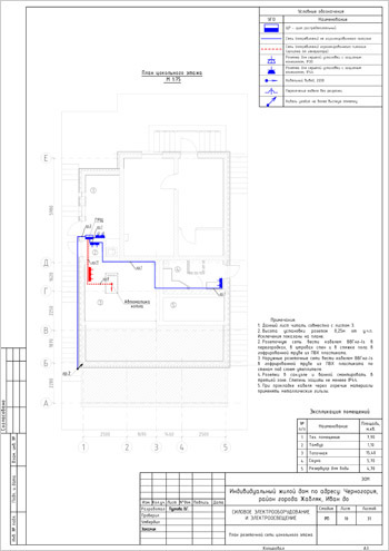
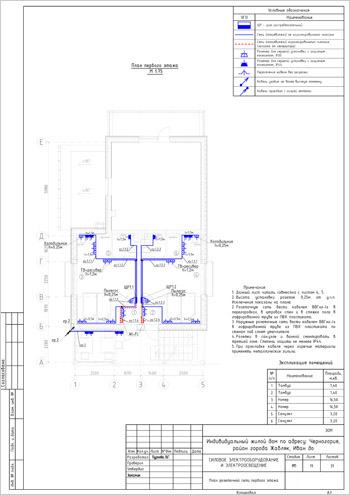
план питающей сети
План питающей сети 1
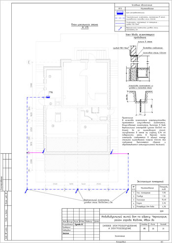
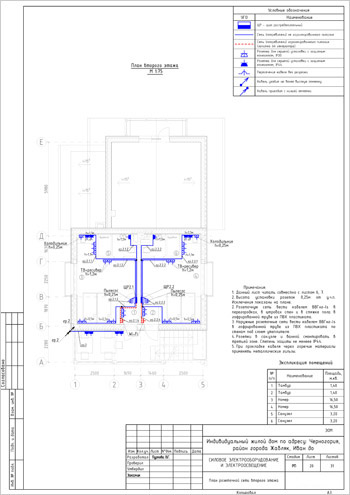
план питающей сети
План питающей сети 2
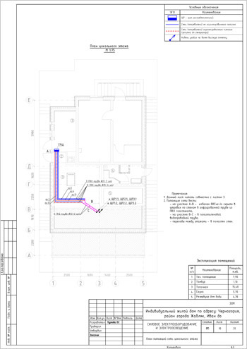
план питающей сети
План питающей сети 3
план питающей сети
План питающей сети 4
план питающей сети
План питающей сети 5
план сети освещения
План сети освещения 1
План сети освещения
План сети освещения 2
План сети освещения
План сети освещения 3
план сети освещения
План сети освещения 4
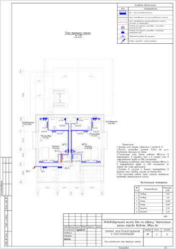
план розеточной сети
План розеточной сети 1
план розеточной сети
План розеточной сети 2
план розеточной сети
План розеточной сети 3
план розеточной сети
План розеточной сети 4
План электрооборудования
План электрооборудования
план теплых полов
План теплых полов 1
план теплых полов
План теплых полов 2
План теплых полов 1
План теплых полов 3
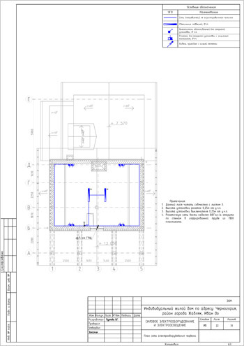
система уравнивания потенциалов
Система уравнивания потенциалов
С. уравнивания потенциалов
Система уравнивания потенциалов
С. уравнивания потенциалов
Система уравнивания потенциалов
система уравнивания потенциалов
Система уравнивания потенциалов
Схема заземления
Схема заземления
Схема молниезащиты
Схема молниезащиты
Спецификация материалов и оборудования
Спецификация материалов и оборудования
Спецификация материалов и оборудования
Спецификация материалов и оборудования
Спецификация материалов и оборудования
Спецификация материалов и оборудования
Спецификация материалов и оборудования
Спецификация материалов и оборудования

Вы ознакомились с составом проекта электрооборудования

Примеры других проектов