дизайн интерьера - пример визуализации спальни в коттедже

Состав дизайн-проекта входной группы

Проектирование входных групп

Ознакомиться с составом проекта реконструкции (проектом устройства отдельного входа) или по другому - дизайн-проектом входной группы, Вы можете далее. Проектная документация состоит из двух частей - архитектурные решения, включающие предпроектные эскизные разработки концепции реконструкции входной группы, либо устройства нового входа, и конструктивные решения, содержащие рабочие чертежи, необходимые для выполнения строительных работ. В качестве примера мы приводим проект устройства отдельного входа в административном здании в Москве на улице Делегатская.


Состав проекта (архитектурная часть)

1

Общая пояснительная записка (ОПЗ)

Содержит в своем составе общие данные о проектируемом объекте, ТЭП (технико-экономические показатели), указания по производству работ, требования к материально-техническому обеспечению, механизации и транспорту, охране окружающей среды

2

Ситуационный план М 1:2000

Выполняется на основе предоставленной заказчиком выкопировки из земель города в М1:2000, либо на основе публичных карт

3

Генплан М 1:500

Выполняется на основе предоставленной заказчиком актуальной на момент проектирования топографической съемки (топосъемки) в М1:500 с нанесенными кадастровыми границами и инженерными коммуникациями

4

План благоустройства территории М 1:500

Выполняется на основе предоставленной заказчиком актуальной на момент проектирования топографической съемки (топосъемки) в М1:500 с нанесенными кадастровыми границами и инженерными коммуникациями

5

Фотофиксация существующего положения

Фотографии объекта (фрагмента фасада здания) до реконструкции

6

3D виды. Визуализация

Выполняется на основе утвержденного варианта входной группы. Визуализация с 2-3 видовых точек

7

Фотомонтаж входной группы

Выполняется на основе утвержденного варианта входной группы

8

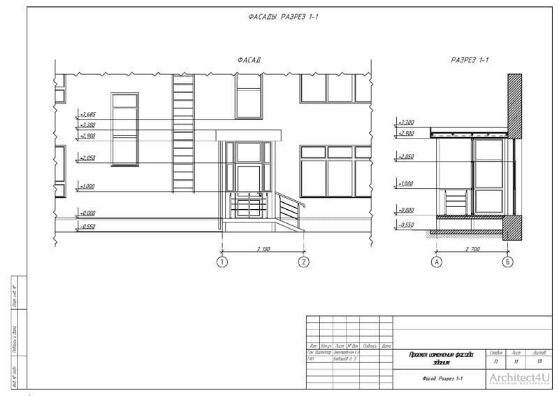
Фасады

Выполняются на основе утвержденного варианта входной группы

9

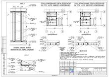
Отделка фасадов и детали. Чертежи входной группы

Рабочие архитектурные чертежи. Ведомость отделочных материалов. Чертежи авторских деталей

Пример проекта АР


Пояснительная записка к проекту

Пояснительная записка

Ситуационный план

Ситуационный план

Генплан

Генплан

План благоустройства

План благоустройства

Фотофиксация

Фотофиксация

3D визуализации

3D визуализации

Фотомонтаж

Фотомонтаж

Цветовое решение фасадов

Цветовое решение фасадов

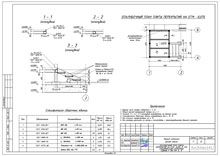
Чертежи фасадов

Чертежи фасадов

План нежилого помещения

План нежилого помещения

Ведомость фасадных материалов. Чертежи

Ведомость материалов. Чертежи

Пример проекта КР


Ведомость рабочих чертежей

Ведомость рабочих чертежей

Общие указания

Общие указания

Спецификация

Спецификация

Опалубочный план фундамента

Опалубочный план фундамента

План армирования плиты

План армирования плиты

Гидроизоляция фундамента

Гидроизоляция фундамента

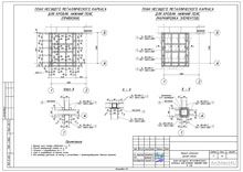
Схема колонн каркаса

Схема колонн каркаса

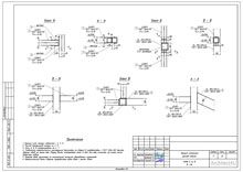
Узлы и сечения

Узлы и сечения

Узлы и сечения

Узлы и сечения

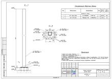
Колонна

Колонна

Колонна

Колонна

Плита перекрытия. Армирование

Плита перекрытия. Армирование

План несущего каркаса

План несущего каркаса

План несущего каркаса

План несущего каркаса

План несущего каркаса

План несущего каркаса

Кровля

Кровля

Сечение по крыше

Сечение по крыше

Дополнительно

Консультация архитектора