Проект загородного дома в Балашихе
| Местоположение | Московская обл., Балашиха |
| Проектирование | 2009 г. |
| Заказчик | Частное лицо |
| Стиль дома | Фахверк |
| Общая площадь | 310,6 кв.м |
| Жилая площадь | 99,3 кв.м |
| Объем здания | 1241,5 куб.м |
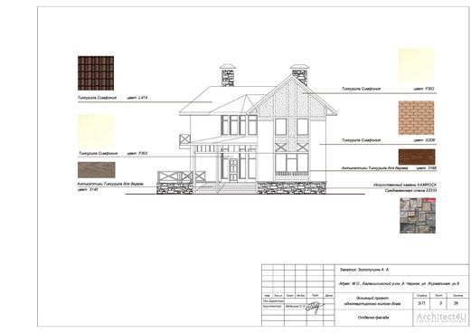
| Отделка фасадов | Цоколь - искусственный камень. Стены - декоративная штукатурка. Ступени, площадка - клинкерная плитка. Кровельный материал - металлочерепица. |
Объект
В нашу архитектурную мастерскую обратился заказчик с целью разработки индивидуального проекта для строительства загородного дома общей площадью порядка 300 кв.м. Земельный участок расположен в 25 километрах от МКАДа по Носовихинскому шоссе. Участок треугольной формы на окраине лесного массива, много сосен. В качестве пожеланий по внешнему облику коттеджа были предложены фахверковые дома, но при этом присутствие оштукатуренных частей фасада должно было быть минимальным. На данной странице представлен итог работы нашей архитектурной мастерской по проектированию дома.
Генеральный план. Привязка дома на участке
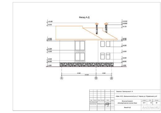
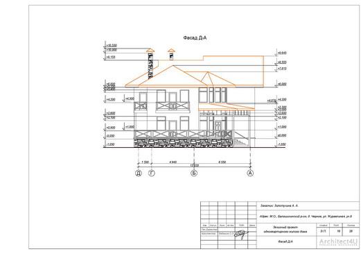
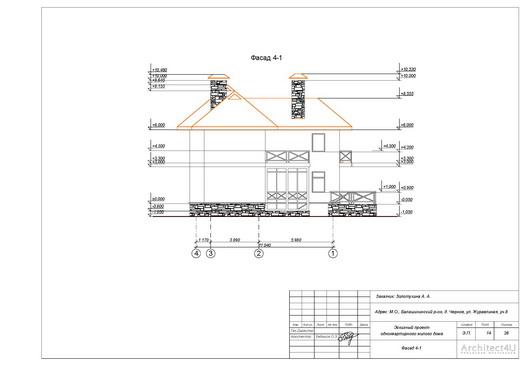
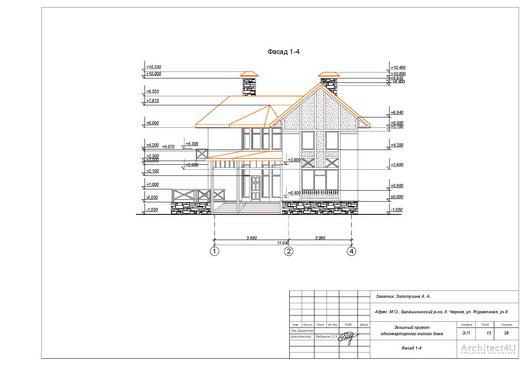
Главный фасад дома | Задний фасад дома

3D визуализация загородного дома со стороны заднего фасада
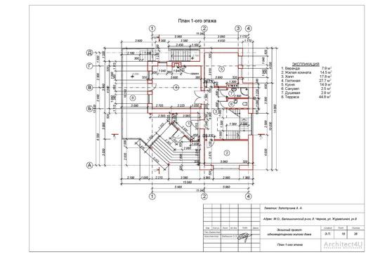
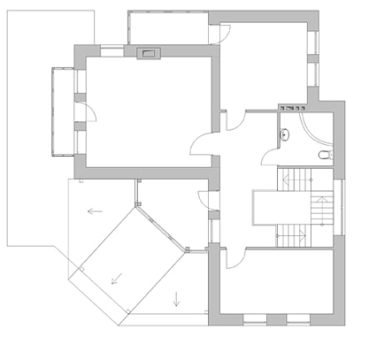
План первого этажа на отметке +0,000
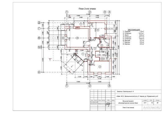
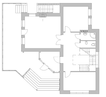
План второго этажа на отметке +3,300
Индивидуальное проектирование дома
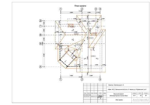
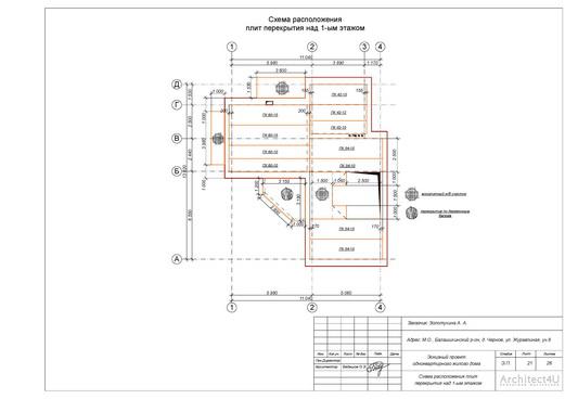
Состав расширенного эскизного проекта


.jpg)
.jpg)
.jpg)
.jpg)
.jpg)
.jpg)
.jpg)
.jpg)
.jpg)
.jpg)
.jpg)
.jpg)
.jpg)
.jpg)
.jpg)
.jpg)
.jpg)
.jpg)
.jpg)
.jpg)
.jpg)
.jpg)
.jpg)
.jpg)