Проект реконструкции загородного дома
| Местоположение | Московская обл., Балашиха |
| Проектирование | 2009 г. |
| Заказчик | Частное лицо |
| Стиль дома | Классический |
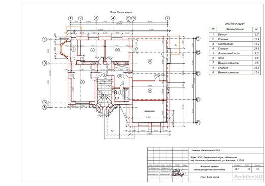
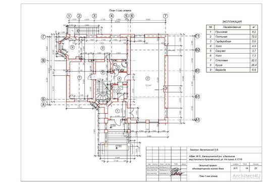
| Общая площадь | 495,0 кв.м |
| Жилая площадь | 92,3 кв.м |
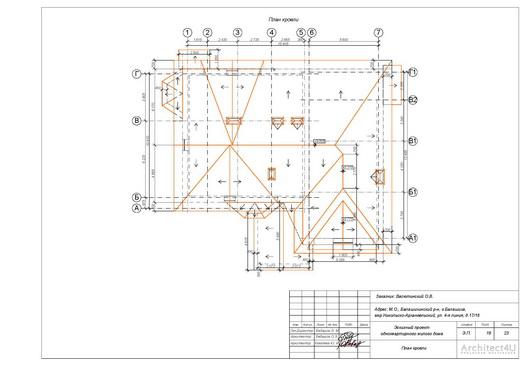
| Объем здания | 2 800,5 куб.м |
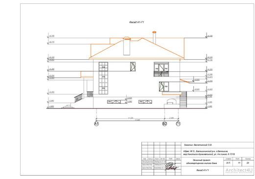
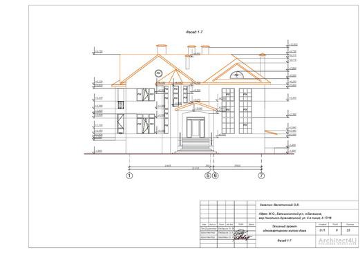
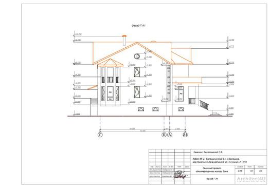
| Отделка фасадов | Цоколь - натуральный камень. Стены - плитка из натурального камня - известняк. Ступени, площадка - плитка из гранита. Кровельный материал - металлочерепица. |
Объект
В распоряжение архитекторов нашей проектной мастерской достался недостроенный коттедж в подмосковной Балашихе. За время владения домом, у хозяина сформировались определенные желания по требуемому составу помещений и их приблизительным площадям, что касается внешнего вида загородного дома, то существуещее положение устраивало отчасти, требовалась реконструкция. Предполагалось расширить дом, и тем самым добавив требуемые помещения, путем строительства пристройки с правой стороны. В ходе работы над этим проектом были предложены различные объемно-планировочные решения перепланировки как существующей части дома, так и планировки пристраиваемой, включающие в себя также вариантную проработку декора и отделки фасадов загородного дома.На данной странице представлен итог нашей кропотливой работы.

Индивидуальное проектирование жилого дома
Архитектурный проект реконструкции


.jpg)
.jpg)
.jpg)
.jpg)
.jpg)
.jpg)
.jpg)
.jpg)
.jpg)
.jpg)
.jpg)
.jpg)
.jpg)
.jpg)
.jpg)
.jpg)
.jpg)
.jpg)
.jpg)
.jpg)
.jpg)