Проект дома в ДНТ Соболиха
| Местоположение | Железнодорожный |
| Проектирование | 2011 г. |
| Заказчик | Частное лицо |
| Стиль дома | Классический |
| Общая площадь | 493,6 кв.м |
| Жилая площадь | 164,6 кв.м |
| Объем здания | 2 938,5 куб.м |
| Отделка фасадов | Цоколь - искусственный камень. Стены - облицовочный кирпич. Ступени, площадка - плитка керамическая. Кровельный материал - гибкая битумная черепица. |
Объект
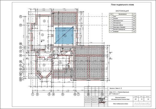
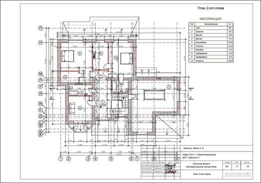
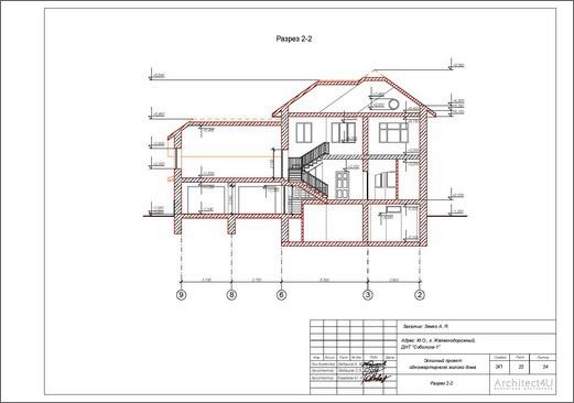
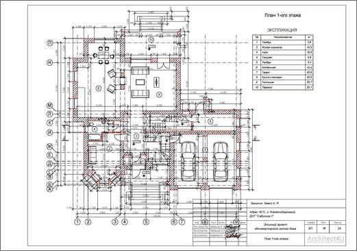
Участок 11,5 соток расположен в частном секторе города Железнодорожный, Московской области. Планировка одноквартирного жилого дома решена в 3-х уровнях. В подвальном этаже запроектированы: холл, санузел, тренажерный зал, постирочная, комната отдыха, зона сауны и душевой, помещение бассейна, кладовая. На первом этаже расположены: два тамбура, кухня-столовая, холл, жилая комната, санузел, котельная, гостиная, гараж, терраса. На втором этаже запроектированы: три спальни, холл, две ванных комнаты, две гардеробные, коридор, бильярдная. Общая площадь загородного дома 493,6 кв.м.
Генеральный план участка
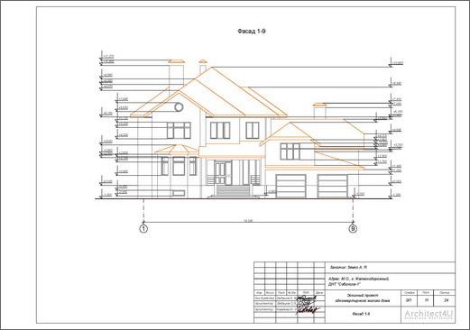
Главный и боковой фасады дома

3D визуализация со стороны заднего фасада
План подвального этажа
План первого этажа
План второго этажа
Альтернативные варианты отделки фасадов
Индивидуальное проектирование дома
Состав архитектурного проекта

.jpg)
.jpg)
.jpg)
.jpg)
.jpg)
.jpg)
.jpg)
.jpg)
.jpg)
.jpg)
.jpg)
.jpg)
.jpg)
.jpg)
.jpg)
.jpg)
.jpg)
.jpg)
.jpg)
.jpg)
.jpg)
.jpg)
.jpg)
.jpg)