Проект 18-и квартирного жилого дома
Архитектурные решения | Индивидуальное проектирование
| Местоположение | Балашиха |
| Проектирование | 2011 г. |
| Заказчик | Частное лицо |
| Стиль дома | Классический |
| Общая площадь | 1 333,7 кв.м |
| Объем здания | 7 631,4 куб.м |
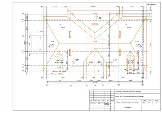
| Отделка фасадов | Цоколь - искусственный камень. Стены - декоративная штукатурка под покраску Ступени, площадка - плитка керамическая. Кровельный материал - металлочерепица |
Объект
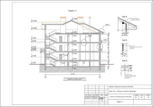
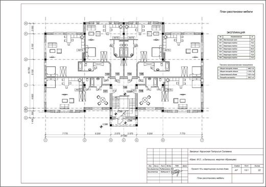
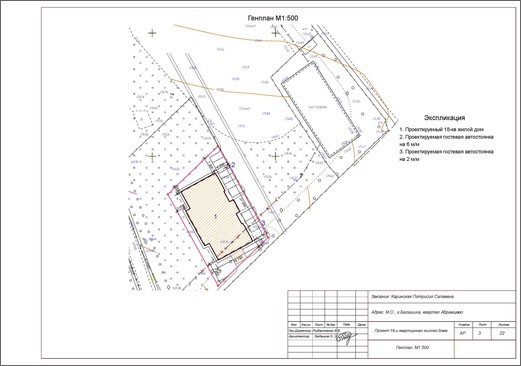
Участок расположен в городе Балашиха, квартал Абрамцево. Конфигурация участка - прямоугольник со скошенными сторонами. Общая площадь участка составляет 11,6 соток. Планировка 18-ти квартирного зеркальная. Входная группа размещена посередине фасада. Предусмотрено три типа квартир-студий общей площадью 62,8 кв.м., 75,6 кв.м., 77,3 кв.м. В уровне цокольного этажа дома запроектирована парковка на 14 машиномест. На данной странице сайта Вы можете ознакомиться с одним из возможных вариантов проекта 18-ти квартирного жилого дома.
Генеральный план. Привязка дома на участке
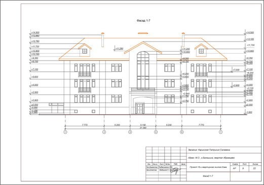
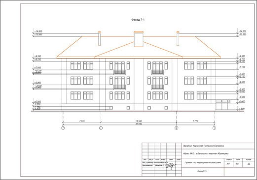
Главный и боковой фасады дома

3D визуализация 18-ти квартирного жилого дома со стороны заднего фасада
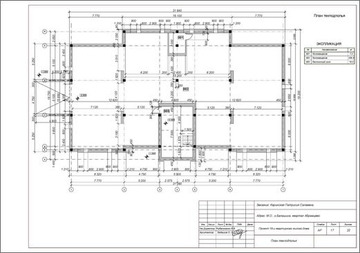
План цокольного этажа. Паркинг
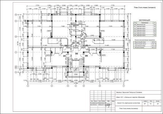
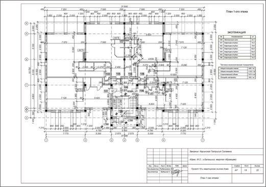
План первого (типового) этажа
Индивидуальное проектирование жилого дома
Архитектурный проект - АР (стадия П). Состав проекта для ознакомления
.jpg)
.jpg)
.jpg)
.jpg)
.jpg)
.jpg)
.jpg)
.jpg)
.jpg)
