Проект дома для узкого участка
Архитектурные решения | Индивидуальное проектирование
| Местоположение | Балашиха |
| Проектирование | 2011 г. |
| Заказчик | Частное лицо |
| Стиль дома | Современный |
| Общая площадь | 165,8 кв.м |
| Жилая площадь | 80,2 кв.м |
| Объем здания | 951,8 куб.м |
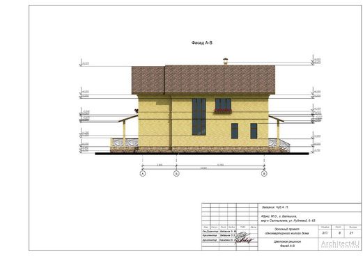
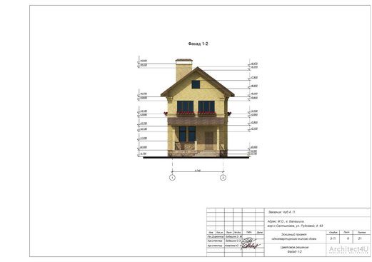
| Отделка фасадов | Цоколь - искусственный камень. Стены - облицовочный кирпич, планкен Ступени, площадка - плитка клинкерная. Кровельный материал - металлочерепица |
Объект
Участок расположен в частном секторе города Балашиха, мкр. Салтыковка. Конфигурация участка представляет собой полосу земли шириной около 10 метров. Это послужило своего рода канвой для архитекторов нашей мастерской при определении композиционной схемы проектируемого частного дома. На данной странице сайта Вы можете ознакомиться с одним из возможных решений индивидуального проекта дома для узкого участка. Если у вас узкий длинный участок и вы не знаете как спланировать дом - обращайтесь, обязательно поможем найти лучшее решение!
Простой вариант дома в кирпичной классике
Генеральный план. Привязка дома на участке

3D визуализация загородного дома со стороны главного фасада. Современный вариант отделки
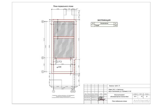
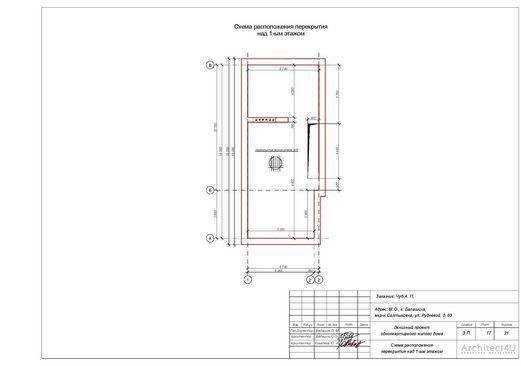
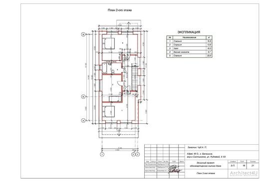
План первого и второго этажей дома
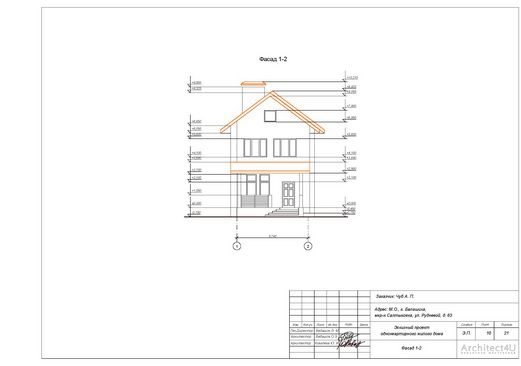
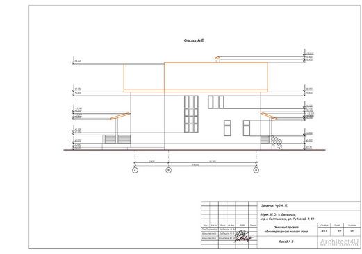
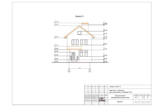
Фасады загородного дома
Индивидуальное проектирование дома
Состав архитектурного проекта (П)
.jpg)
.jpg)
.jpg)
.jpg)
.jpg)
.jpg)
.jpg)
