Проект частного дома на две семьи
Архитектурные решения | Индивидуальное проектирование
| Местоположение | Балашиха |
| Проектирование | 2009 г. |
| Заказчик | Частное лицо |
| Стиль дома | Фахверк |
| Общая площадь | 644,2 кв.м |
| Жилая площадь | 2 x 108,2 кв.м |
| Объем здания | 3 815,7 куб.м |
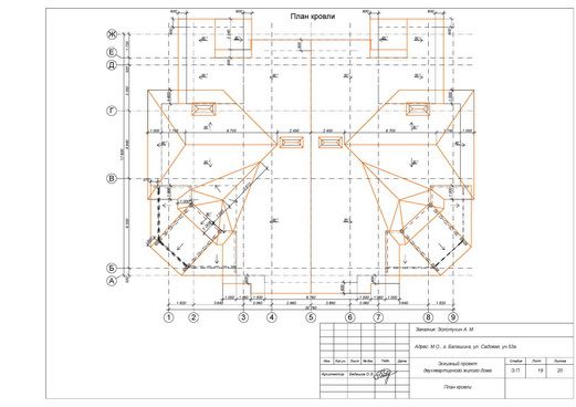
| Отделка фасадов | Цоколь - искусственный камень. Стены - облицовочный кирпич, штукатурка, деревянная раскладка Ступени, площадка - плитка клинкерная. Кровельный материал - металлочерепица |
Объект
Участок расположен в частном секторе города Балашиха, мкр. Никольско-Трубецкое. По желанию заказчика за основу данного проекта коттеджа на две семьи взят ранее разработанный архитекторами нашей мастерской проект загородного дома с элементами стиля фахверк. Архитектурные решения, принятые в нем настолько понравились заказчику, что было решено внести минимальные изменения, связанные со спецификой архитектурно-планировочной структуры блокированного дома. Предлагаем ознакомиться с данным проектом.
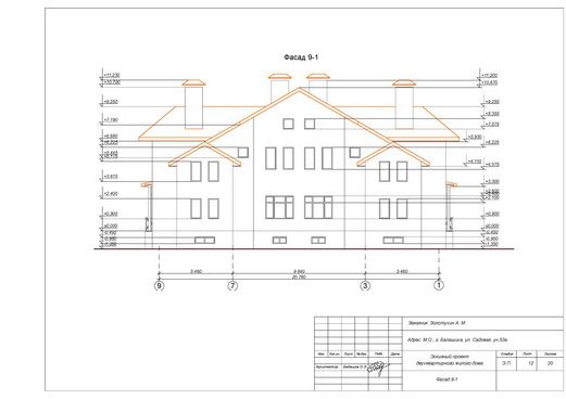
Главный фасад
Задний фасад

3D визуализация загородного дома со стороны заднего фасада
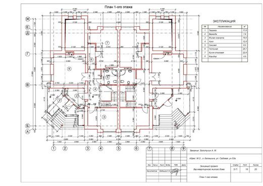
План первого этажа на отметке +0,000
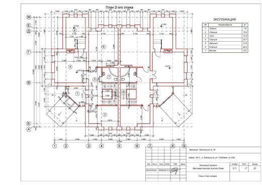
План второго этажа на отметке +3,300
Индивидуальное проектирование жилого дома
Архитектурный проект (стадия П). Состав проекта для ознакомления
.jpg)
.jpg)
.jpg)
.jpg)
.jpg)
.jpg)
.jpg)
