Проект загородного дома на Новой Риге
| Местоположение | д. Воронино |
| Проектирование | 2012 г. |
| Заказчик | Частное лицо |
| Стиль дома | Стиль Райта |
| Общая площадь | 269,9 кв.м |
| Жилая площадь | 142,4 кв.м |
| Объем здания | 1 406,7 куб.м |
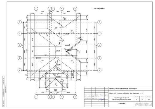
| Отделка фасадов | Цоколь - искусственный камень. Стены - облицовочный кирпич, планкен Ступени, площадка - плитка клинкерная. Кровельный материал - металлочерепица |
Объект
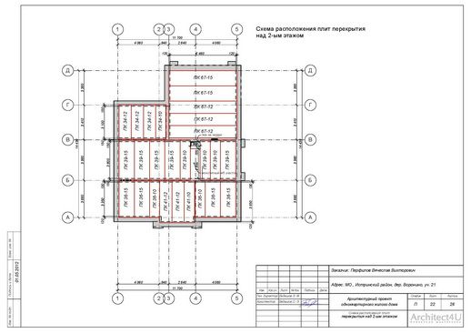
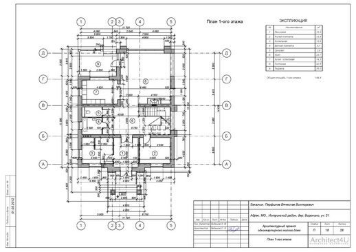
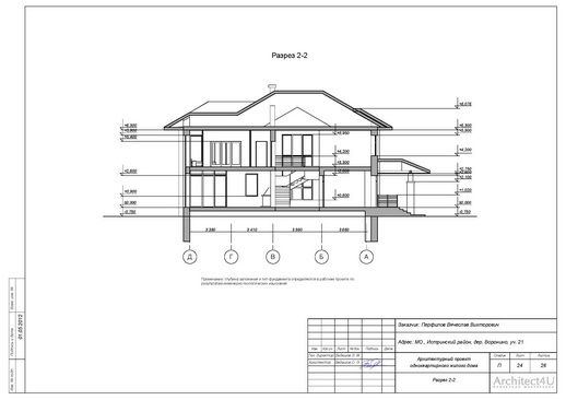
Земельный участок 14,5 соток расположен в деревне Воронино, Истринского района. Конфигурация участка - прямоугольник правильной формы. Наружные стены дома запроектированы из пеноблоков с облицовкой в полкирпича. В отделке использован планкен из термоясеня. Цоколь здания облицован искусственным камнем. На первом этаже расположены: прихожая, жилая комната, котельная, ванная комната, санузел, холл, кухня-столовая, гостиная, терраса. Общая площадь первого этажа - 144,4 кв.м. На втором этаже дома запроектированы: комната отдыха, две детских, две ванной комнаты, спальня, санузел, тамбур, холл, гардеробная. Общая площадь помещений второго этажа - 125,5 кв.м. Габаритные размеры дома 15,3x12.5м.

Индивидуальное проектирование жилого дома
Архитектурный проект - АР. Состав проекта для ознакомления
.jpg)
.jpg)
.jpg)
.jpg)
.jpg)
.jpg)
.jpg)
.jpg)
.jpg)
.jpg)
.jpg)
