Проект жилого дома в ДНТ Оболдино
| Местоположение | Щелковский р-он |
| Проектирование | 2012 г. |
| Заказчик | Частное лицо |
| Стиль дома | Классика |
| Общая площадь | 191,0 кв.м |
| Жилая площадь | 97,1 кв.м |
| Объем здания | 895,0 куб.м |
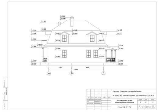
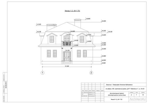
| Отделка фасадов | Цоколь - керамическая плитка. Стены - облицовочный кирпич, штукатурка Ступени, площадка - плитка клинкерная. Кровельный материал - металлочерепица |
Объект
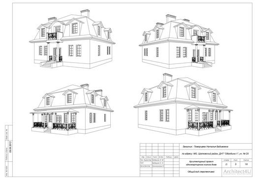
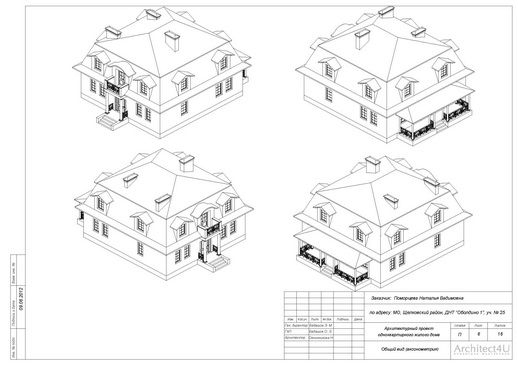
Участок расположен в ДНТ "Оболдино-1", Щелковского района. Имеет ровную прямоугольную форму размером 23x32,7 метров. В качестве несущих элементов дома выступают наружние и внутренние стены. Несущие стены выполнены из шлакоблоков. Наружняя отделка фасадов - облицовочный кирпич, декоративная штукатурка. Цоколь - керамическая плитка. Дом имеет два этажа, второй этаж мансардный. На первом этаже запроектированы: тамбур, холл, спальня, гостиная, кухня-столовая, санузел, помещение котельной, кладовая. На втором мансардном - холл, три спальни, кабинет, гардеробная, ванная комната. Предлагаем вам ознакомиться с индивидуальным проектом небольшого загородного дома общей площадью < 200 кв.м..

Индивидуальное проектирование жилого дома
Эскизный проект (ЭП). Состав проекта для ознакомления
.jpg)
.jpg)
.jpg)
.jpg)
.jpg)
.jpg)
.jpg)
