Проект одноквартирного жилого дома
Архитектурные решения | Индивидуальное проектирование
| Местоположение | Балашиха |
| Проектирование | 2013 г. |
| Заказчик | Частное лицо |
| Стиль дома | Стиль Райта |
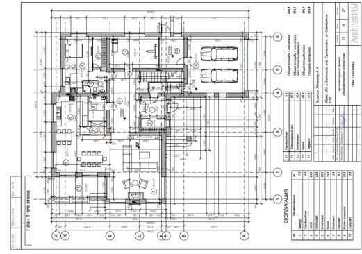
| Общая площадь | 399,7 кв.м |
| Жилая площадь | 105,6 кв.м |
| Объем здания | 2 829,3 куб.м |
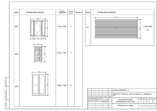
| Отделка фасадов | Цоколь - керамическая плитка. Стены - облицовочный кирпич, штукатурка Ступени, площадка - плитка клинкерная. Кровельный материал - металлочерепица |
Объект
Участок расположен в частном секторе города Балашиха, мкр. Салтыковка. Перед архитекторами была поставлена задача спроектировать комфортный дом для постоянного проживания семьи с тремя детьми. На первом этаже запроектированы: тамбур, две гардеробной, холл, гостиная, столовая, кухня, кладовая, два санузла, жилая комната, котельная, гараж, терраса. На втором этаже дома проектом предусматривается: холл, четыре спальни, три гардеробной, две ванной комнаты, помещение постирочной.
Генеральный план участка
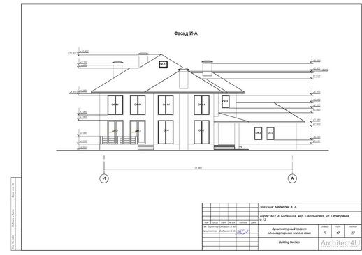
Решение главного и бокового фасадов дома
План первого этажа на отметке +0,000
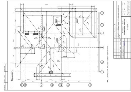
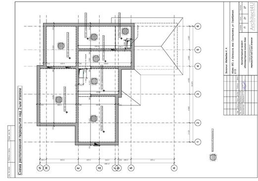
План второго этажа на отметке +3,300

3D визуализация альтернативного дизайн решения фасадов
3D визуализация со стороны террасы
Индивидуальное проектирование жилого дома
Архитектурный проект (стадия П). Состав проекта для ознакомления
.jpg)
.jpg)
.jpg)
.jpg)
.jpg)
.jpg)
.jpg)
.jpg)
