Проект жилого дома в Барвихе
Архитектурные решения | Индивидуальное проектирование
| Местоположение | МО, Одинцовский р-н, Барвихинский с.о., дер. Шульгино |
| Проектирование | 2013 г. |
| Заказчик | Частное лицо |
| Стиль дома | Классический |
| Общая площадь | 241,0 кв.м |
| Отделка фасадов | Цоколь - искусственный камень. Стены - штукатурка, клинкерная плитка под кирпич. Кровельный материал - металлочерепица типа "Испанская дюна" |
Объект
На момент проектирования дома выполнены работы по возведению фундамента. Задача архитекторов: Разработать архитектурно-строительный проект коттеджа. Планировки этажей предоставлены заказчиком. Наружние, внутренние стены и перегородки выполнены из крупноформатных поризованных керамических блоков Поротерм (Porotherm) на теплой кладочной смеси. Междуэтажные перекрытия. Над техподпольем - сборно-монолитные типа "Эко-Дом". Над первым и вторым этажами перекрытия из сборных ж/б плит серии 3ПБ, толщиной 160мм. Крыша скатная, вальмового типа.
Генплан участка
Главный фасад
Фотофиксация 1
Фотофиксация 2
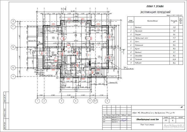
Чертеж плана 1-ого этажа. Лист из проекта АС
Чертеж плана 2-ого этажа. Лист из проекта АС
3D визуализация дома со стороны улицы. Вид справа

Вид со стороны участка
Вид со стороны участка
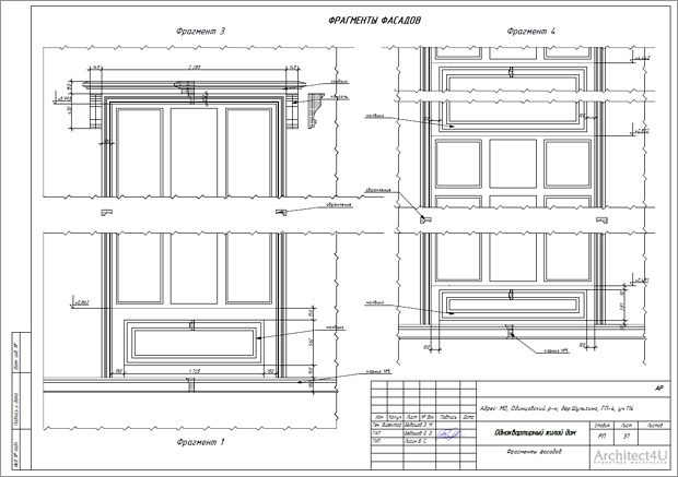
Чертежи оконного декора. Лист из проекта АС
