Проект дома в Ногинском районе
Архитектурные решения | Индивидуальное проектирование
| Местоположение | МО, Ногинский район |
| Проектирование | 2012 г. |
| Заказчик | Частное лицо |
| Стиль дома | Стиль Райта |
| Отделка фасадов | Цоколь - искусственный камень. Стены - облицовочный кирпич, планкен. Кровля - металлочерепица |
Задача
Разработать архитектурно-строительный проект коттеджа. Земельный участок граничит с лесом. Много сосен, которые необходимо максимально сохранить. Наружние, внутренние стены выполнены из крупноформатных поризованных керамических блоков Поротерм (Porotherm). Междуэтажные перекрытия - сборные ж/б. Крыша скатная, вальмового типа.
Генплан участка
Главный и боковой фасады
Фотофиксация земельного участка
Фотофиксация земельного участка
3D визуализация дома со стороны заднего фасада. Вид с отделочными материалами
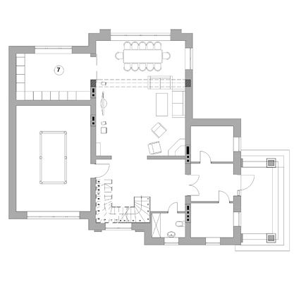
План 1-ого этажа
План 2-ого этажа

Рабочий макет (3D модель). Главный фасад. Один из предложенных вариантов входной группы
Рабочий макет (3D модель). Задний фасад
Рабочий макет (3D модель дома)
