Рабочий проект инженерных решений электроснабжения квартиры
Раздел ЭОМ - электроснабжение
Основные технические характеристики объекта
Наименование параметра |
Данные проекта |
Данные проекта |
Напряжение сети |
230/240 В |
230/240 В |
Категория электроснабжения |
III |
III |
Расчетная мощность |
20,05 кВт |
15,42 кВт |
Коэффициент мощности |
0,92 |
0,93 |
Расчетный ток |
31,46 А |
23,83 А |
Состав рабочего проекта
Ниже приводим список, что включает в себя раздел силового электрооборудования и электроосвещения квартиры.
- общие данные - ведомость рабочих чертежей проекта ЭОМ
- пояснительная записка
- ЩР. Схема электрическая принципиальная распределительного щита квартиры
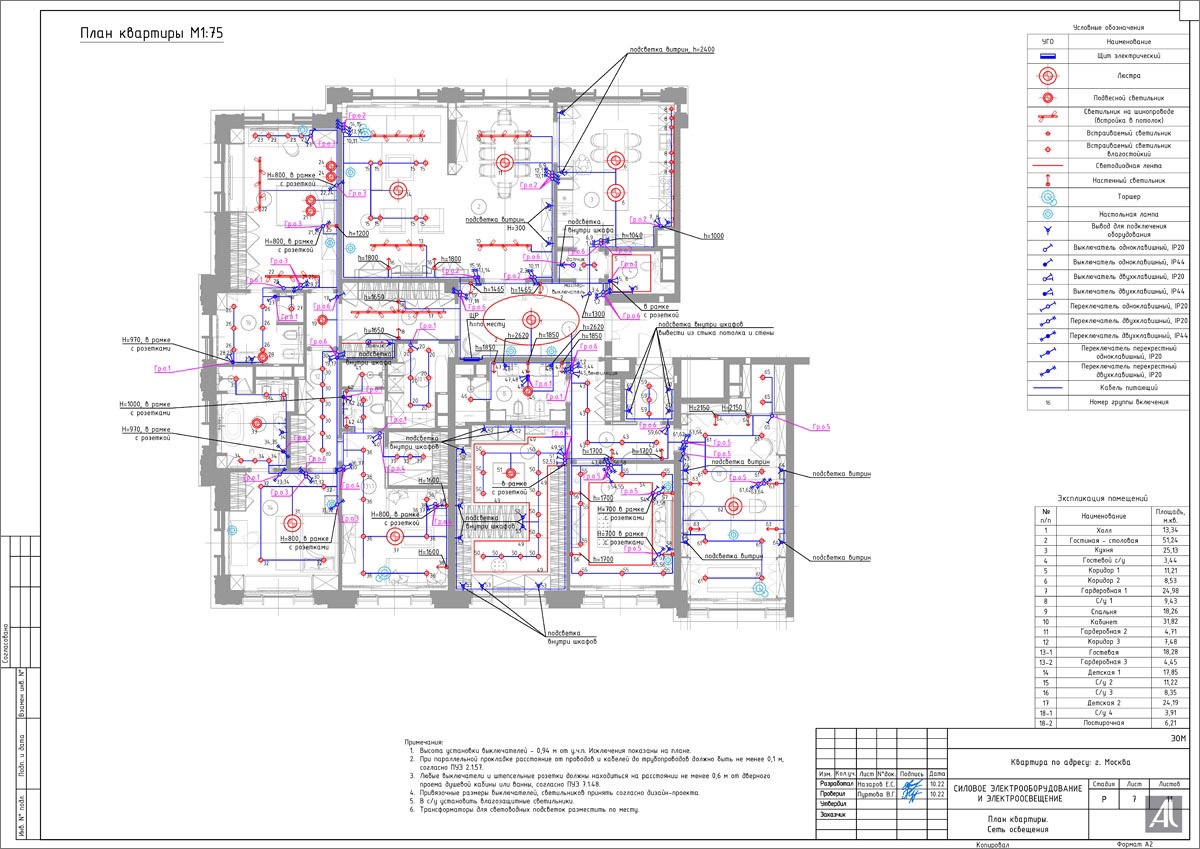
- чертеж плана электроснабжения квартиры - план освещения
- чертеж плана электроснабжения квартиры - план розеток
- планы дополнительной системы уравнивания потенциалов
- требования к электрооборудованию и его размещению в помещениях санузла
- схема управления одной группой освещения с двух и трех мест
- таблицы спецификации оборудования и материалов
Пример проекта электрооборудования (ЭОМ) квартиры в Москве
Вы ознакомились с составом проекта электрооборудования квартиры
Проектирование в соответствии с ГОСТ, СНиП, СП
Разработка проекта инженерных решений электроснабжения выполняется опытным квалифицированным инженером в соответствии с требованиями и рекомендациями актуальных нормативных документов и государственных стандартов.
Принятые технические решения соответствуют требованиям экологических, санитарно-технических, противопожарных и других действующих правил и обеспечивают безопасную для жизни и здоровья людей эксплуатацию объекта при соблюдении предусмотренных рабочим проектом мероприятий.
Условные обозначения
ГОСТ - государственный стандарт
СНиП - строительные нормы и правила
СП - свод правил
- ПУЭ, 6,7 изд. Правила устройства электроустановок
- ГОСТ Р 50571.7.701-2013 Электроустановки низковольтные
- СП 73.13330.2016 Электроустановки жилых и общественных зданий, правила проектирования и монтажа
- СП 76.13330.2016 Электротехнические устройства
- СНиП 21.01-97 Пожарная безопасность зданий и сооружений
- СП6.13130.2013 Системы противопожарной защиты. Электрооборудование. Требования пожарной безопасности
- СП 52.13330.2016 Естественное и искусственное освещение
Онлайн расчет стоимости проекта
Ниже показана ориентировочная стоимость разработки полного рабочего инженерного проекта электроснабжения дома / квартиры общей площадью 100 кв.м. Не является публичной офертой. Для расчета стоимости проекта ЭОМ для вашего дома / квартиры введите общую площадь
Стоимость проектирования: 66 000 руб.
Расчет выполнен на основании цен на проектирование, действующих с 01.01.2025 по 31.12.2025



















