Проект лестницы в бассейн, на мансарду
На данном объекте, расположенном в Чеховском районе, МО, нам была поставлена задача разработать проект для возведения двух монолитных одномаршевых железобетонных лестниц.
На данной странице вы можете ознакомиться с составом проекта конструктивных решений лестницы в бассейн и лестинцы на мансардный этаж.
Что в проекте
Приводим список чертежей, которые должны быть в рабочем проекте для успешного осуществления строительных работ.
- титульный лист (обложка)
- ведомость рабочих чертежей
- общие указания
- существующие поэтажные планы в зонах возведения лестниц
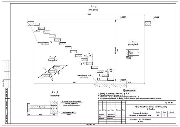
- лестница в бассейне, опалубочный план лестницы
- сечения (опалубка)
- лестница на мансардный этаж, опалубочный план лестницы
- сечения (опалубка)
- ведомость стержней, спецификация сборочных единиц
Пример проекта лестницы в бассейн, лестницы на мансардный этаж в частном доме
Вы ознакомились с составом проекта конструктивных решений лестницы в бассейн, лестницы на мансардный этаж
