Проект металлической лестницы
За долгие годы работы приходилось проектировать лестницы различной конфигурации и из различных материалов. Проектировали как в составе основного проекта дома, так и отдельно, делая привязку к существующей планировки помещений дома.
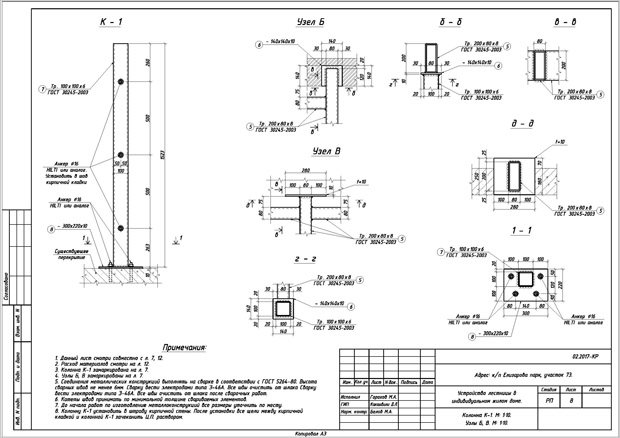
На данной странице вы можете ознакомиться с составом проекта конструктивных решений металлической лестницы.
Что включает проект металлической лестницы
Приводим список чертежей, которые должны быть в рабочем проекте.
- титульный лист (обложка)
- ведомость рабочих чертежей
- общие указания
- общая спецификация на все элементы
- опалубочный план плиты перекрытия на отметке уровня второго этажа
- план армирования плиты перекрытия с учетом устройства лестницы
- закладные детали в плите перекрытия на отметке уровня второго этажа
- схема несущих металлических элементов лестницы
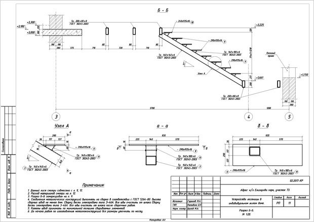
- сечение по колонне, узлы
- схема металлических ступеней лестницы
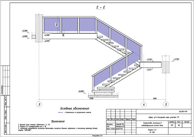
- разрезы
- спецификация сборочных единиц
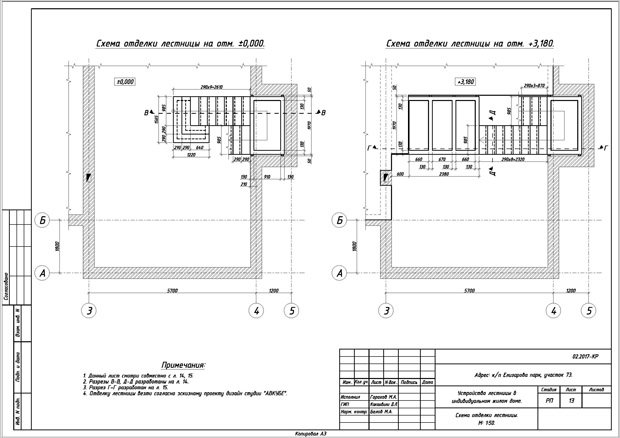
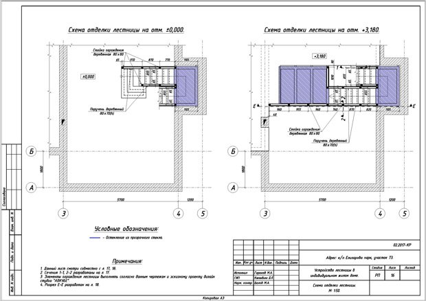
- схема отделки лестницы
- сечения
Пример проекта металлической лестницы на второй этаж в частном доме
Вы ознакомились с составом проекта конструктивных решений металлической лестницы в частном жилом доме
