Примеры проектов домов США 1920
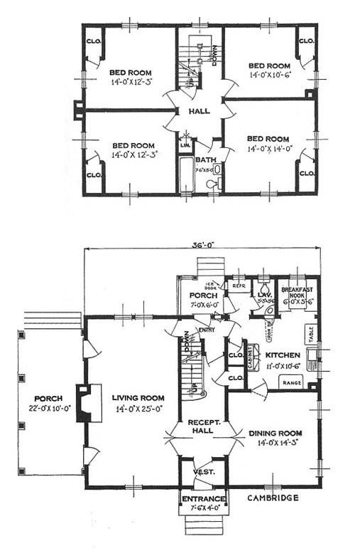
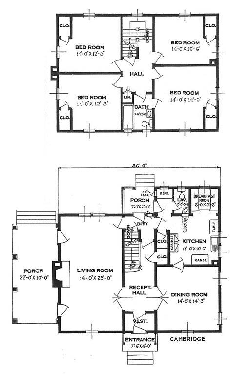
Проект дома The CAMBRIDGE
When one looks thoughtfully at the colonial style of architecture as shown in The Cambridge, his thoughts go back to the days when the love of home and family were the most sacred emotions in the hearts of men. There are yet many with steadfastness of purpose who long for the sentiment of colonial days, and to such The Cambridge will be an inspiration.
Проект дома The COLLINGWOOD
It is appreciation that humanity really is seeking and not gold. Gold, gained honestly or dishonestly, is in turn paid for appreciation and applause. He is most appreciated by friend and neighbor who contributes to his community a substantial home and unselfishly shares his comforts and pleasures with those of his kind.

Проект дома The STONELEIGH
The Stoneleigh was designed for those who wish a home of distinction, decidedly different from the many well-known types. There is carefully combined in this home, grace, character, and comfort, and so cleverly have these three features been blended, it will stand as a thing of beauty in any community, regardless of neighboring mansions.

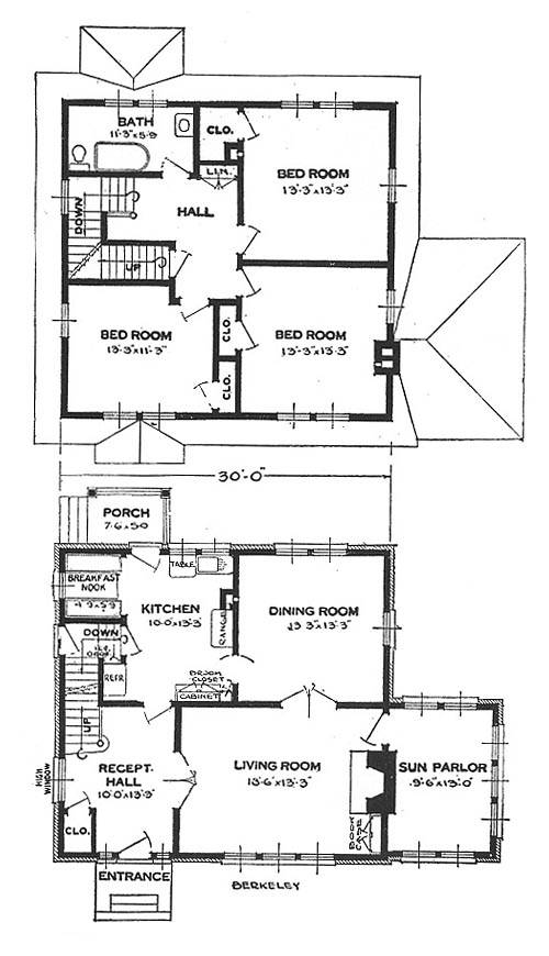
Проект дома The BERKELEY
It is around the firesides of happy homes where children chatter with glee and loving mothers watch over them with divine care that the best and noblest thoughts of men are generated. The germs of selfishness, envy and greed have little chance to multiply in homes of the substantial character of The Berkeley.

Проект дома The PEMBROKE
Once in a great while a new idea is born, a thing of beauty developed by a dreamer, or something entirely original is expressed by the hand of an artist. For example, The Pembroke is a new idea in the field of architecture, a creation of rare beauty, with originality expressed in every line.