Эскизный проект реконструкции частного дома в Швейцарии
| Местоположение | Швейцария, Тальвиль |
| Проектирование | 2022 г. |
| Заказчик | Частное лицо |
| Общая площадь | 169,5 кв.м |
| Габариты | 8,20 x 9,87 м |
| Инженерия | Электроснабжение, холодное и горячее водоснабжение, канализация |
| Стиль | Современный |
| Отделка фасадов | Облицовочная клинкерная плитка Roben |
Объект
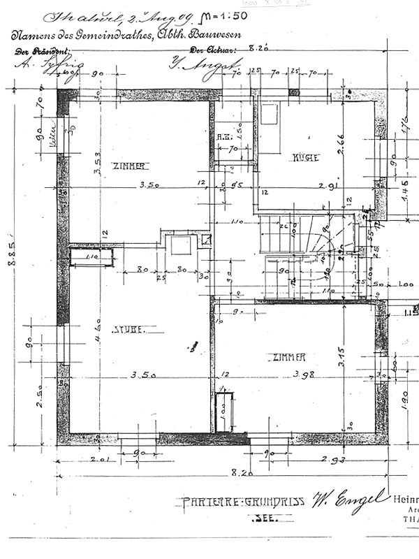
Далеко не часто попадают в работу такие коттеджи. Дом, построенный в далеком 1910 году. Перестраивался в 1986. В 2022 году пришла пора очередных изменений. Перед нашими архитекторами стояла задача выполнить перепланировку помещений и сделать редизайн фасадов. Проектирование на стадии упрощенного эскизного проекта. Для построения модели здания заказчик предоставил отсканированные ручные раритетные чертежи из альбомов 1910 и 1986 года, новые фотографии существющего состояния фасадов дома, виртуальный тур интерьеров, план кадастровых границ, техзадание.

Чертежи из альбома 1910 года
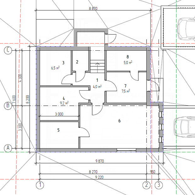
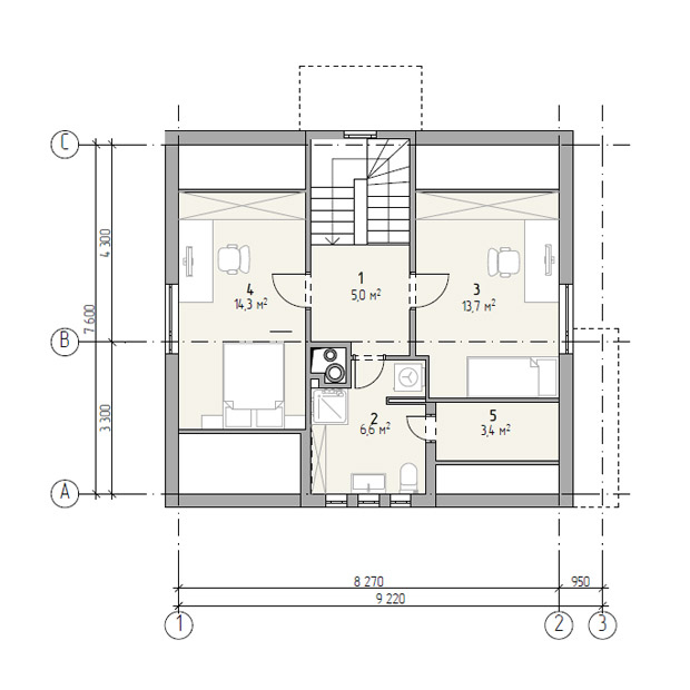
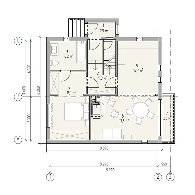
Новый проект 2022 года












