Дом Н. А. Гончарова (Яузская ул., дом 4)
Усадьба принадлежала А. А. Гончарову (деду жены А. С. Пушкина) уже в 1758 году и упоминается в его завещании 1778 года. В своих аннотациях Е. А. Белецкая пишет, что "дом показан на плане 1782 года". Между тем на этом плане, изображена усадьба, весьма далекая от того, что зафиксировано в Альбоме Казакова. Левый флигель еще не соединяется с домом, а последний значительно уже современного.
Примерно такой же вид имела усадьба, насколько это можно разобрать, на плане Москвы Горихвостова 1768 года. Во дворе довольно крупные каменные палаты, современные габариты дома "задевают" их, стало быть, разборка этих палат предшествовала перестройке. В 1780-х годах это вряд ли произошло, ибо в 1782 году палаты во дворе ремонтировали. В Альбоме изображено реально существовавшее здание (а не проект - см. об этом ниже), которое по его обличию в Альбоме можно датировать концом 90-х годов XVIII века. В 1784 году А. А. Гончаров умер, и владельцем дома стал его сын Н. А. Гончаров, а потом внук - Афанасий Николаевич. Между 1801 и 1803 годами дом перешел к И. В. Гудовичу (Московскому генерал-губернатору с 1804 по 1812 г.) , а тот уже в 1805 году продал его купцу Смирнову.

Фасад дома Гончарова
В 1812 году дом сгорел. Флигеля к 1816 году были восстановлены. Несомненно, что сначала владелец хотел восстановить дом пол ностью, но верхний этаж и мезонин центральной части так и не были никогда востановлены.
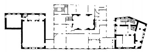
"Идеальный" монолитный фасад дома скрывает три отдельных корпуса (прием этот был широко распространен в конце XVIII в.). Кажется, что все три корпуса соединены переходами. На самом деле правый флигель совершенно изолирован. Это вполне самостоятельный дом, и планировка его, несмотря на сложную конфигурацию корпуса, очень удачна. Вероятно, служебная часть этого флигеля, которая вплотную подходит к церкви Троицы в Серебряниках, и есть самая старая часть дома: она сложена из большемерного кирпича XVII века (явно второго использования), с лопатками и крошечными окошками, похожими на служебные окошки середины XVIII века, с коваными решетками в них.
Левый флигель - это огромный (более 130 кв.м) летний зал (печей в нем нет). К залу примыкает буфетная, справа маленькая комната для отдыха (как в доме Яминского, например), слева лестница на хоры для музыкантов. Рядом с залом кухня. Освещается зал огромным пятиколодным окном французского типа (с окнами до полу) с двумя обычными окнами по сторонам.

План второго этажа дома Гончарова
Необычное, совершенно дворцовое пятиколодное окно существовало в натуре. Более того, композиции второго этажа уличного фасада флигеля была повторена и на обоих его фасадах. Таким образом, зал был почти лишен стен (он был сделан "фонариком", как называл такие постройки архитектор Н. А. Львов). Почему боковые окна заложили так скоро (до 1801 г.), сказать трудно. Вероятно, выяснилась крайняя непрактичность такого решения (как ни мало думали о практичности устроители дома).
В художественном отношении это также, вероятно, не принесло успеха, ибо если в центральное окно открывался прекрасный вид на устье Яузы и Замоскворечье, то из боковых - стены соседних корпусов (правое окно к тому же затемнено переходом).
В левом флигеле сохранилась великолепная изразцовая печь пятиметровой высоты, увенчанная вазой - один из наиболее выдающихся образцов русского прикладного искусства. По качеству она не уступает лучшим дворцовым печам (Таврического дворца в Ленинграде, Останкинского в Москве и т. д.). Одних только рельефных изразцов (не считая профилированных) в ней употреблено 23 типа. Датировка печи представляет большой интерес для истории русского прикладного искусства. В 1801 году печи еще не было, не было и той стены, у которой она стоит. Эта стена (точнее перегородка) могла появиться только после уничтожения уличного итальянского окна. Никаких оснований думать, что дом подвергался ремонту до 1812 года, разумеется, нет. После пожара ремонт стал необходимостью, а флигель восстанавливался, как уже говорилось, в 1816 году. Печь, вероятно, как раз этого времени.
Между тем облик печи, манера украшения ее арабесками, все ее детали (например, розетка подиума или фризик, близко повторяющий фризы предпожарных домов Москвы) вызывают в памяти печи конца XVIII - первых лет XIX века (в изобилии изображенные в тех же Альбомах Казакова). Нам кажется, однако, что никакого противоречия здесь нет. Не говоря уже об устойчивости форм в прикладном искусстве, не будет ничего удивительного в том, если окажется, что формы для изразцов сделаны еще до 1812 года, но сохранились (или были дублированы) и широко применялись при застройке Москвы после 1812 года. Так объясняется тот странный конгломерат зданий, который сохранился сейчас от дома Гончаровых, этого своеобразного памятника искусства и быта.
Источник "Классическая Москва", Е. В. Николаев, Стройиздат 1975