Дизайн проект фасада загородного дома
Дизайн фасада - это архитектурная стратегия, формирующая образ дома, его статус и актуальность во времени. На этой странице представлена услуга комплексного проектирования фасадов: от разработки концепции и подбора материалов до подготовки эскизного и рабочего проекта. Здесь вы найдёте описание этапов работы, примеры реализованных решений, дополнительные возможности и инструменты для расчёта стоимости, чтобы осознанно подойти к обновлению или созданию внешнего облика вашего дома.
Фасад показывает, насколько дом продуман архитектурно, а не просто оформлен. Мы рассматриваем фасад как систему: пропорции, ритм, материалы, свет, сценарии восприятия с разных точек. Такой подход позволяет создавать облик дома, который остаётся выразительным и актуальным спустя годы.
Олег Бедашов - главный архитектор, руководитель мастерской
Обновление архитектурного облика дома
Дизайн фасадов - это услуга архитектурного проектирования, направленная на обновление и переосмысление внешнего облика дома. Даже качественно спроектированные и построенные дома со временем требуют визуальной актуализации.
Даже локальные задачи - реконструкция входной группы или террасы - часто требуют комплексного подхода к фасадам, чтобы архитектура дома выглядела целостно и гармонично.
Прогнозируемый результат и долговечность фасадов возможны только при наличии продуманного дизайн-проекта. Профессиональная проработка архитектурных решений позволяет избежать ошибок на этапе строительства и обеспечить корректный монтаж материалов.
Профессиональный фасадный дизайн
Опыт с 2008 года
Успешно проектируем экстерьер новых и реконструируемых домов. Команда архитекторов, конструкторов и инженеров обеспечивает точное выполнение проекта.
Любые материалы и стили
Работаем с современными фасадными материалами, знаем особенности их применения и обеспечиваем долговечность отделки.
Неограниченные эскизы
Предлагаем 2-3 концепции, дорабатываем выбранный вариант до полного утверждения, чтобы проект был полностью индивидуальным.
Рабочий проект фасадов дома с подсветкой
Что даёт проект
На этапе архитектурной концепции прорабатываются варианты дизайна, чтобы выбрать оптимальный. После согласования концепта разрабатывается рабочий проект фасадов со всеми необходимыми чертежами и расчётами. Это позволяет точно закупать материалы и качественно выполнять строительно-отделочные работы.
Что вы получите
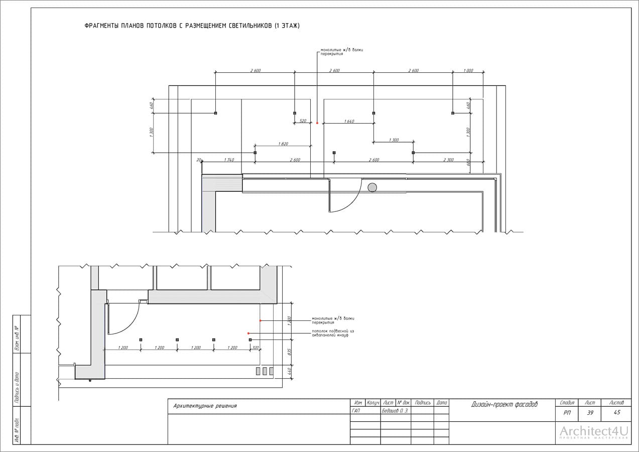
Проект предоставляется в электронном виде (PDF-альбом) формата А3 с 3D-визуализациями, рабочими чертежами и ведомостями материалов, декора и светильников.
Образец проекта
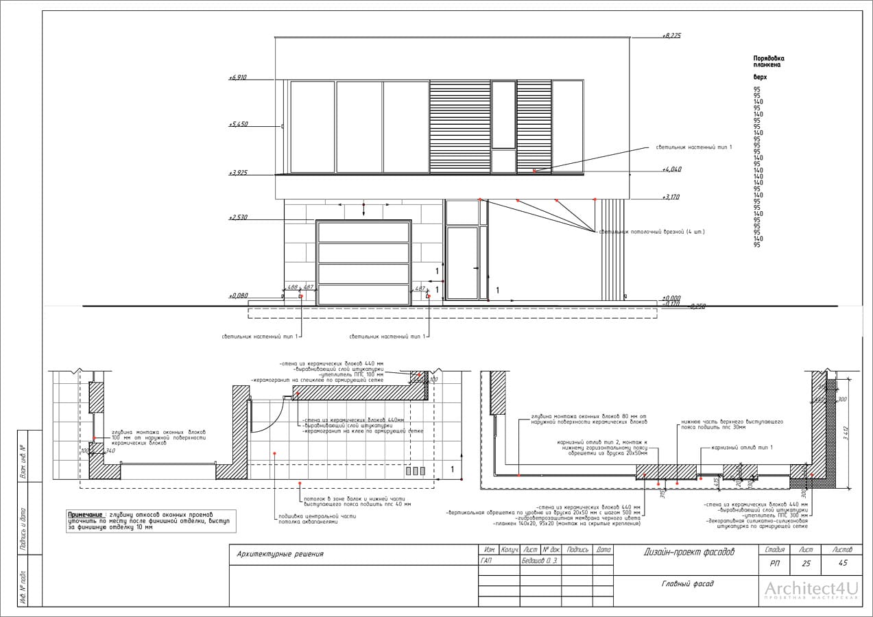
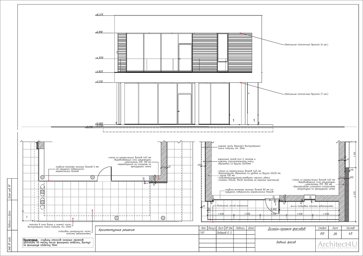
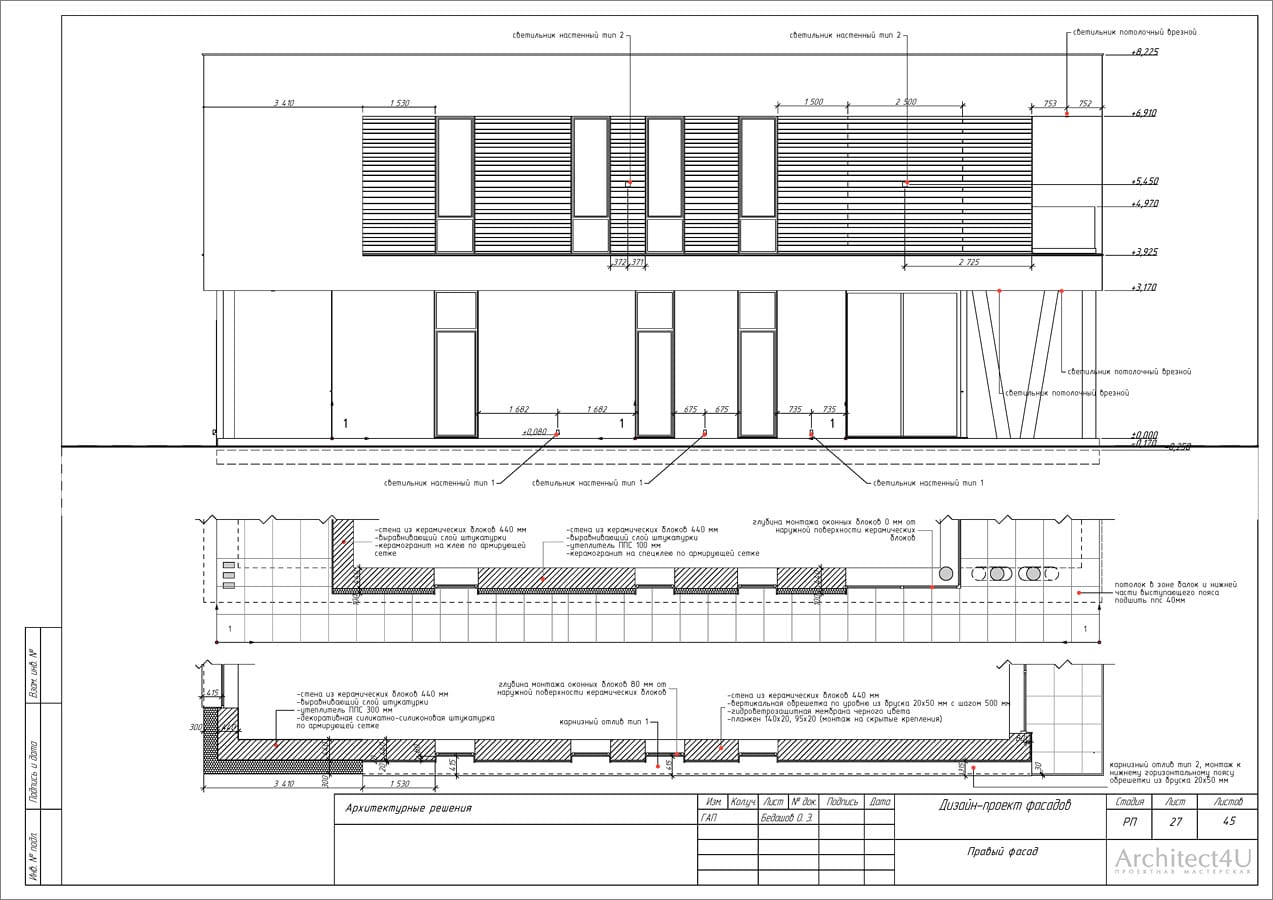
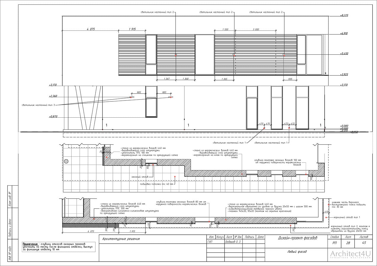
Ознакомьтесь с примером рабочего дизайн-проекта фасадов с архитектурной подсветкой. В его состав входят финишные (дневные и вечерние) визуализации утвержденного варианта концепции, чертежи и цветовые решения фасадов, архитектурные узлы и детали, ведомости и спецификации отделочных материалов, декоративных элементов и светильников.
Визуализации согласованного варианта
Чертежи фасадов
Колористическое решение
Наглядно иллюстрирует распределение типов отделки по фасадам.
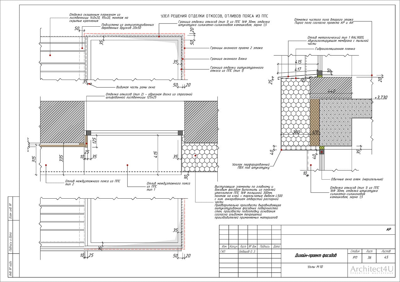
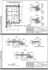
Узлы и детали
Для того чтобы строители смогли выполнить отделку и монтаж фасадных элементов правильно и в соответствии с замыслом архитектора.
Ведомости и спецификации
Дают информацию что именно закупать и в каких количествах. Производители, отделочные материалы, элементы декора, светильники и др.
Расчет стоимости проектированияРеализация проекта этого дома
Эскизный проект отделки фасадов дома
Что даёт проект
Вариантная проработка архитектурных эскизов помогает выбрать оптимальное дизайнерское решение и увидеть дом с обновлёнными фасадами ещё до начала строительства.
Что вы получите
Электронный альбом проекта в формате PDF: архитектурная концепция фасадов без размеров и подсчёта материалов.
Пример эскизного проекта
Образец эскизного проекта отделки фасадов двухэтажного жилого дома в стиле Райта (Московская область).
Стоимость индивидуального проекта фасадов
Стоимость индивидуального проекта фасадов рассчитывается по общей поэтажной площади дома, его архитектурной стилистике и выбранному формату услуги. В расчет входит только площадь наземных полных этажей (чердаки, подвалы и цоколь не учитываются).
Мы предлагаем три формата услуги: эскизный дизайн-проект фасадов, полный рабочий дизайн-проект и рабочий проект фасадов с архитектурной подсветкой.
⚠️ Точная стоимость определяется по техническому заданию и может изменяться в течение года (индексация, сезонные факторы). Онлайн-калькулятор отражает ориентировочные значения на основании действующего прайса мастерской (01.01.2026 - 01.05.2026).
Площадь дома
Укажите ориентировочную общую площадь
- Эскизный дизайн проект фасадов
ЭП - 42 000 руб.
- Архитектурная концепция фасадов и эскизы (без рабочих размеров)
- Срок изготовления проекта: 2 - 4 недели
- Оплата: 70% - аванс, 30% - после согласования
-
- Изучение исходных проектных данных
- 3D моделирование объекта
- Разработка дизайна: 2-3 концепции + доработка выбранного варианта
- Фотореалистичная 3D-визуализация дома
- Цветовое решение фасадов
- Электронная версия проекта (PDF)
- Заказать
- Эскизный + рабочий дизайн проект фасадов
- 50 000 руб.
- Проект для закупки материалов и выполнения строительно-отделочных работ, содержит все чертежи и расчеты
- Срок изготовления проекта: 4 - 5 недель
- Оплата: 50% - аванс, 25% - после утверждения, 25% - после сдачи проекта
-
- Изучение исходных проектных данных
- 3D моделирование объекта
- Разработка дизайна фасадов: 2-3 варианта + корректировка выбранного
- Фотореалистичная 3D-визуализация дома
- Цветовое решение фасадов с проектными отметками и размерами
- Расчет площадей покрытий и погонажа элементов (ведомость материалов и декоративных деталей)
- Электронная версия проекта (PDF)
- Онлайн консультации после завершения проектных работ
- Заказать
- Проект фасадов с архитектурной подсветкой
- 59 000 руб.
- Проект для закупки материалов, фасадных светильников и выполнения строительно-отделочных работ, содержит все чертежи и расчеты
- Срок выполнения работ: 5 - 7 недель
- Оплата: 50% - аванс, 25% - после утверждения, 25% - после сдачи проекта
-
- Изучение исходных проектных данных
- 3D моделирование объекта
- Разработка дизайна фасадов и фасадного освещения: 2-3 варианта + корректировка выбранного
- Фотореалистичная дневная визуализация дома со всех ракурсов
- Фотореалистичная вечерняя визуализация дома со всех ракурсов
- Цветовое решение фасадов с проектными отметками и размерами
- Расчет площадей покрытий и погонажа элементов (материалы, декоративные элементы, фасадные светильники)
- Электронная версия проекта (PDF)
- Онлайн консультации после завершения проектных работ
- Заказать
Чтобы уделять максимум внимания каждому объекту, мы берём не более 5 проектов в месяц. Работа начинается после обсуждения задачи и оформления договора. Оплата - по договору, удобным для вас способом.
Свободные слоты
Не готовы к полному проекту? Начните с нашего концептуса - первичная визуальная проработка фасада вашего дома. Это пилотная версия услуги с возможностью настроить стоимость точно под ваш дом.
Попробовать КонцептусЭтапы проектирования
Вы направляете фотографии фасадов дома, строительный проект (при наличии). Обсуждаете с наших архитектором пожелания по дизайну. Далее мы готовим коммерческое предложение. После его согласования оформляем договор на проектные работы.
Коммерческое предложение и договор
Изучаем исходные данные и готовим коммерческое предложение, которое включает состав проектных работ, стоимость, сроки выполнения и порядок оплаты. После его согласования готовим договор, и договариваемся о встрече на объекте для выполнения фасадных обмеров. Выполняем детальные обмеры фасадов для создания точной цифровой 3D модели вашего дома. Она будет служить основой для нашей дальнейшей работы. Также фотографируем фасады и их отдельные фрагменты со всех видовых точек. После подписания договора и первого платежа приступаем ко следующему этапу. Также возможно дистанционное удаленное проектирование без выезда на объект.
Архитектурная концепция фасадов
По обмерам создаем трехмерную цифровую модель здания. Каждый дом уникален по своему, и первый шаг в проектировании заключается в изучении особенностей его архитектуры с целью определения сильных и слабых сторон, выявления лучшего решения. Изначально разрабатываем 2-3 базовых варианта исходя из пожеланий по стилю и отделочным материалам. Вы выбираете наиболее понравившийся, высказываете свои пожелания и замечания, мы корректируем его до окончательного утверждения. Количество корректировок не ограниченно. Как только эскиз - вариант фасада согласован и произведен второй платеж, приступаем к третьему завершающему этапу работы.
Рабочий проект отделки
В основе дизайн-проекта фасадов - согласованный вариант, максимально отвечающий вашим требованиям и соответствующий архитектуре дома. На данном этапе финально визуализируются фасады и 3D виды дома, подготавливаем чертежи, считаем количество отделочных материалов, элементов декора (составляем ведомости, спецификации). Оформляем все в готовый проект.
Онлайн поддержка
Все знают, что для успешной реализации проектных решений контроль необходим. Мы предлагаем бесплатную онлайн поддержку архитектора - автора проекта на протяжении всего цикла строительных работ.
Отзывы клиентов
Каждый дом, над которым мы работаем, - это не просто проект. Это мечты, надежды и истории наших клиентов. Читайте их отзывы и убедитесь, как искренне мы относимся к каждому объекту. Все отзывы наших клиентов вы можете прочитать на отдельной странице сайта.
Спасибо за подготовленный проект фасада дома. Угадали с концепцией, цветом и проектом освещения. Проект сделан профессионально и понятен для реализации.
Сергей С. - КП Онегино
2025
Очень рекомендую! Спроектировали дом мне и моим родителям и я точно знаю к кому обращусь при следующем строительстве! Работать с профессионалами своего дела большое удовольствие!
Дмитрий Ж. - Москва
2023
Дополнительные услуги для вашего фасада
Архитектурная подсветка фасада
Проектирование внешнего освещения дома. Стоимость - 15-20% от общей цены проекта фасадов.
Проект конструкций подсистемы вентфасада
Дополнительный конструктивный проект на подсистему. Стоимость рассчитывается на основании рабочего проекта фасадов.
Дизайн ограждения участка
Проектирование забора, идеально подходящего к стилю дома. Вариантная визуализация до окончательного согласования.
Проект конструктивных решений
Рабочий проект конструктивных решений при реконструкции дома (пристройки, террасы, зимние сады). Стоимость индивидуально.
Теплотехнический расчет
Определяем необходимость утепления фасадов и подбираем подходящий утеплитель. Бесплатно.
Проект электроснабжения
Разрабатываем проект электроснабжения для фасадного освещения. Учитываем нагрузку, схему подключения, размещение кабелей и оборудования, требования безопасности и нормативы.
Проектирование с нами
Гарантия качества
Проверенные бригады и авторский надзор обеспечивают точное соблюдение проекта на каждом этапе.
В рамках бюджета
Согласуем ценовой диапазон материалов, рекомендуем качественные и долговечные решения от реальных производителей.
Онлайн поддержка
Бесплатные консультации главного архитектора на протяжении всего строительного процесса.
География не ограничена
Благодаря удалённому проектированию мы работаем с клиентами из России и других стран.





























































Андрей Д. - Истра

















