Проект инженерных решений
Водоснабжение и канализация
Проектирование систем водоснабжения - это важный этап инженерных работ, от которого напрямую зависит стоимость строительства и эксплуатации объекта. Правильно разработанный проект помогает избежать лишних расходов и сделать систему надёжной и долговечной.
На этой странице в качестве образца размещен рабочий проект ВК (водоснабжения и канализации) частного дома с бассейном в Москве, д. Кузнецово
Что входит в состав проекта
Ниже приводим список, что включает в себя проект водоснабжения и канализации.
- общие данные
- принципиальная схема
- схема разводки труб канализации и водопровода в аксонометрии
- схема распределительных коллекторных групп системы водоснабжения
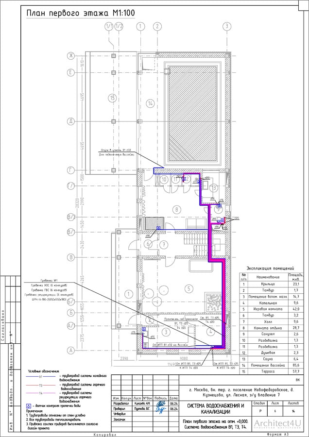
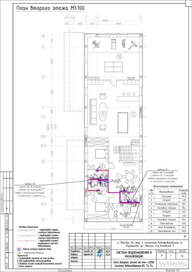
- поэтажные планы системы водоснабжения
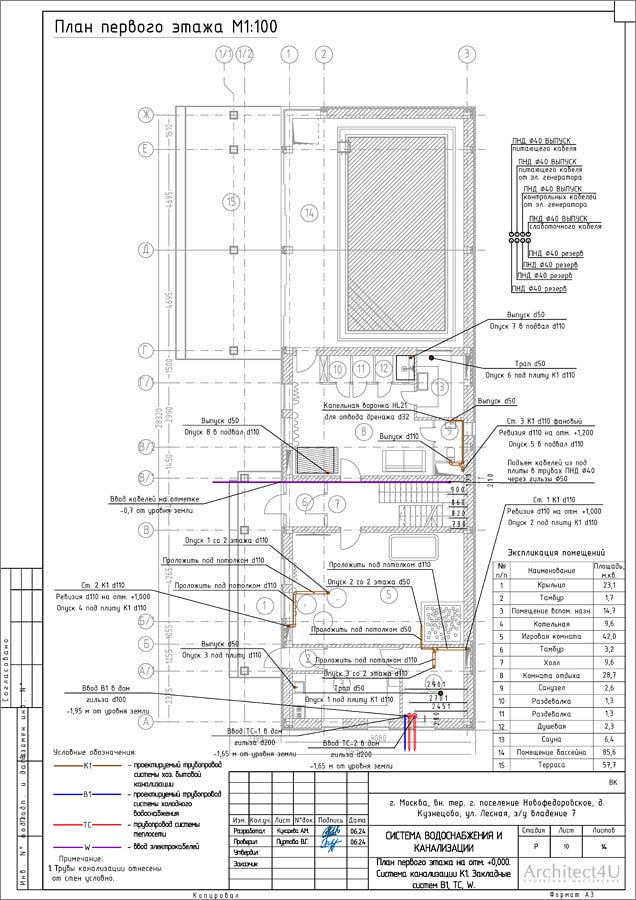
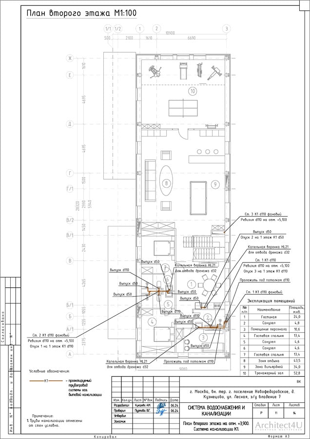
- поэтажные планы системы канализации
- спецификации
Пример проекта водоснабжения и канализации (РП)
Условные обозначения систем
- В1 - водопровод хозяйственно-питьевой
- Т3 - горячее водоснабжение
- Т4 - рециркуляция водоснабжения
- Кн - канализация напорная
- К1 - канализация бытовая
Вы ознакомились с составом проекта водоснабжения и канализации
Онлайн расчет стоимости ВК
Ниже показана ориентировочная стоимость разработки полного рабочего инженерного проекта водоснабжения и канализации (ВК) дома / квартиры общей площадью 100 кв.м. Не является публичной офертой. Для расчета стоимости проекта ВК для вашего дома / квартиры введите общую площадь
Стоимость проектирования: 49 000 руб.
Расчет выполнен на основании цен на проектирование, действующих с 01.01.2025 по 31.12.2025
Вопросы и Ответы
Почему расчёт ведется по общей площади дома, если проектирование водоснабжения и канализации осуществляется только в с/у, котельной и на кухне?
Логичный вопрос. Отвечаем. Потому что трубы идут не только в сан узлах, но и через дом. Мы занимаемся инженерией в комплексе и у нас прайс привязан к общей площади дома, т.к. из опыта понятен объем трудозатрат на дом определенной площади, прайса по точкам у нас нет.














