схема отопления

Проект инженерных решений

Индивидуальное проектирование частных жилых домов

Отопление и вентиляция

Состав проекта

Ниже приводим список, что включает в себя проект отопления и вентиляции.

  • общие данные (отопление)
  • принципиальная схема подключения отопительных приборов
  • теплотехнический расчет
  • спецификация на оборудование
  • схема подключения конструкции водяных полов (выполняется в случае необходимости)
  • общие данные (вентиляция)
  • принципиальная схема
  • расчет по вентиляции
  • спецификация на оборудование

Пример проекта отопления


обложка
Титульный лист
ведомость чертежей
Ведомость чертежей
пз
Пояснительная записка
Пояснительная записка
Пояснительная записка
Пояснительная записка
Пояснительная записка
Теплотехнический расчет
Теплотехнический расчет
Теплотехнический расчет
Теплотехнический расчет
Теплотехнический расчет
Теплотехнический расчет
Теплотехнический расчет
Теплотехнический расчет
Теплотехнический расчет
Теплотехнический расчет
Аксонометрическая схема
Аксонометрическая схема
План размещения радиаторов в подвальном этаже
План радиаторов в подвальном этаже
План размещения радиаторов на 1 этаже
План размещения радиаторов на 1 этаже
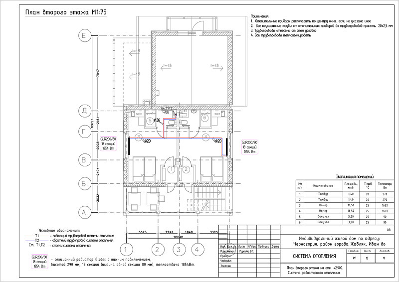
План размещения радиаторов на 2 этаже
План размещения радиаторов на 2 этаже
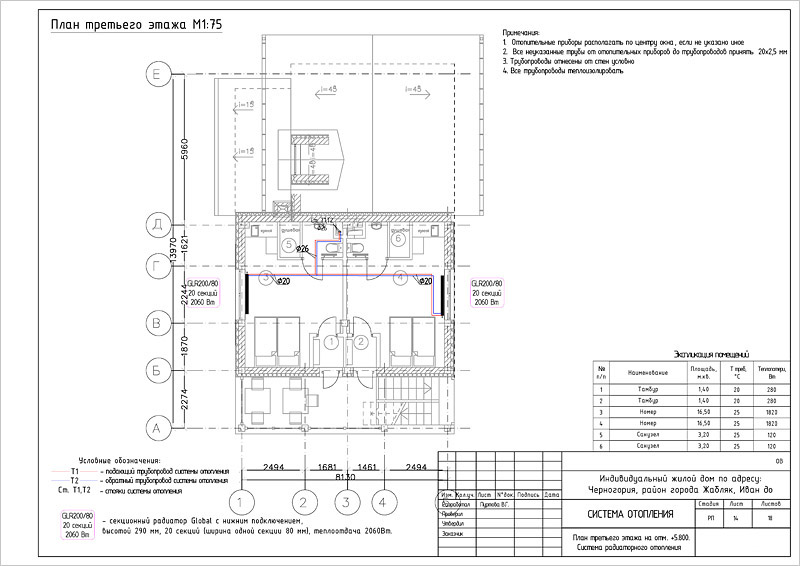
План размещения радиаторов на 3 этаже
План размещения радиаторов на 3 этаже
План системы напольного отопления. 1 этаж
План системы напольного отопления. 1 этаж
План системы напольного отопления. 2 этаж
План системы напольного отопления. 2 этаж
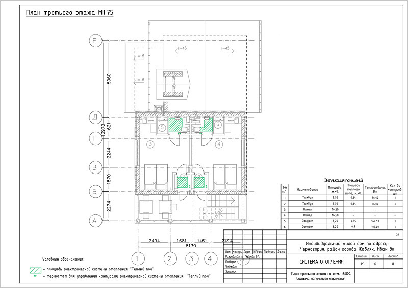
План системы напольного отопления. 3 этаж
План системы напольного отопления. 3 этаж
Экспликация полов
Спецификация оборудования и материалов

Пример проекта вентиляции


обложка
Титульный лист
ведомость чертежей
Ведомость чертежей
пз
Пояснительная записка
Схема систем вентиляции
Схема систем вентиляции
План системы вентиляции. Подвальный этаж
План системы вентиляции. Подвальный этаж
План системы вентиляции. 1  этаж
План системы вентиляции. 1 этаж
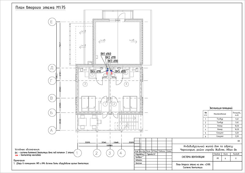
План системы вентиляции. 2  этаж
План системы вентиляции. 2 этаж
План системы вентиляции. 3 этаж
План системы вентиляции. 3 этаж
Спецификация оборудования и материалов
Спецификация оборудования и материалов

Вы ознакомились с составом проекта отопления и вентиляции

Примеры других проектов
Обсудить проект