Эскизный проект загородного дома
Эскизное проектирование, в результате которого разрабатывается эскизный проект, является первым и важным этапом проектных работ по созданию вашего будущего дома.
От грамотности, логичности и конструктивной обоснованности решений эскизного этапа зависит скорость и успешность разработки рабочей документации для строительства.
На данной странице сайта вы можете ознакомиться как с составом эскизного проекта (ЭП) в разных комплектациях, так и посмотреть его образцы. Сделайте онлайн расчет стоимости проектирования своего дома и узнайте как заказать разработку проекта.
Основная информация
Варианты комплектаций ЭП
Цены и как заказать проект
Дополнительная информация
Эскизный проект
Эскизный проект - это комплекс проектных работ, выполненных специалистом (архитектором) в соответствии с техническим заданием заказчика и с соблюдением требований нормативных документов, условий строительства. Основу данного проекта составляет авторская идея (форэскиз, архитектурная концепция) планировочных, фасадных и объемных решений проектируемого объекта. Эскизный проект - это документ, являющийся результатом проектирования, который выпускается в виде альбома, содержащего графические и текстовые данные, определяющие основные параметры объекта и его составных частей.
Для чего нужен эскизный проект
Процесс разработки рабочего проекта для строительства загородного дома является строго последовательным. Эскизный проект - это первый этап проектирования. Его можно назвать генетическим кодом вашего будущего дома. Главная задача, которую решает данный проект это создание архитектурной идеи, концепции внешнего и внутреннего образа дома, отвечающего эстетическим, практическим, функциональным требованиям.
Эскизный проект содержит в себе ответы на многие вопросы, которые задает себе любой человек перед началом строительства. Как будет выглядеть дом, его посадка на участке, внешний вид (фасады), внутренняя планировка - расположение комнат, их размер и взаимосвязь, удобство эксплуатации, надежность, эстетика, стиль будущего дома.
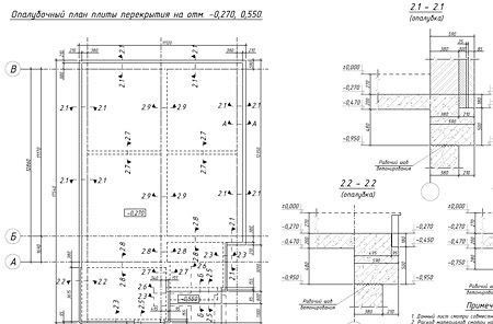
В нем задается основа конструктивной схемы здания - какие стены будут несущими, какие просто перегородками, какой тип перекрытий будет использоваться, какая будет крыша, лестница и т.д.
На основе грамотно выполненного эскизного проекта можно сразу приступать к созданию рабочего проекта (архитектурных, конструктивных, инженерных решений), необходимого для осуществления строительства. Недочеты "сырого эскизника" всплывают, как правило, при разработке рабочей документации.
ЭП (эскизный проект) является также одним из документов, необходимых для получения разрешения на строительство загородного дома.
Что входит в состав эскизного проекта
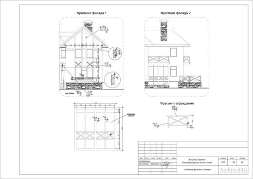
Ниже приводим список, что включает в себя эскизный проект дома. По согласованию с заказчиком состав базового эскизного проекта загородного дома может быть дополнен, например решениями отделки экстерьера (дизайном фасадов), либо какие то материалы (графические, текстовые) могут быть не включены в проект.
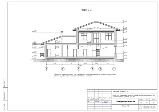
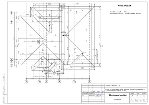
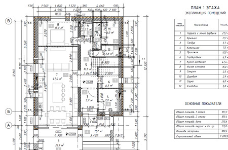
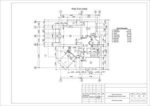
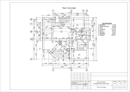
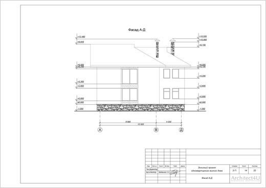
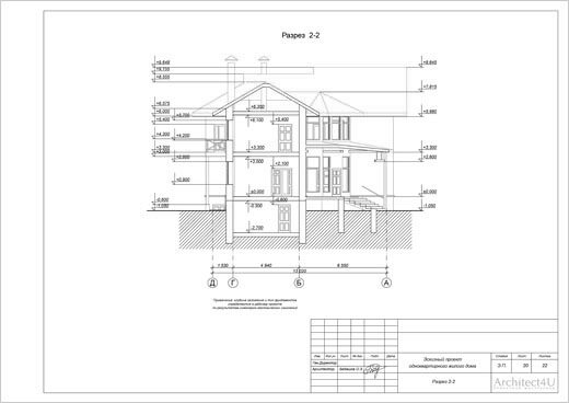
Список чертежей ЭП
- титульный лист (обложка)
- содержание (ведомость чертежей проекта)
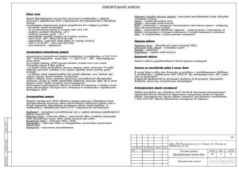
- пояснительная записка
- схема генерального плана М1:500
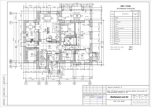
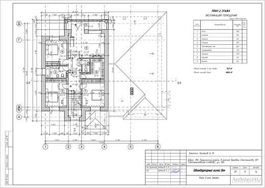
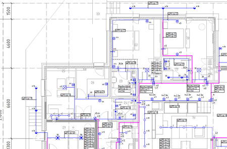
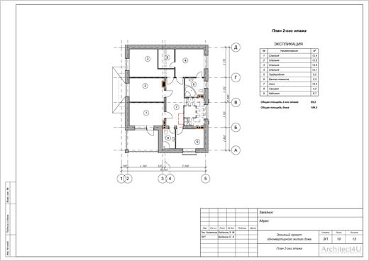
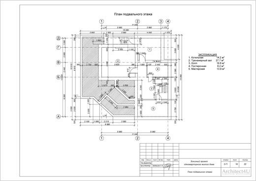
- поэтажные планы
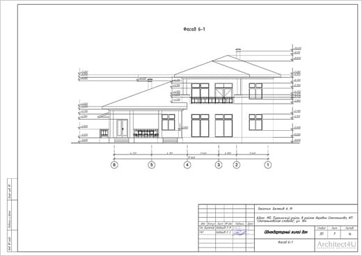
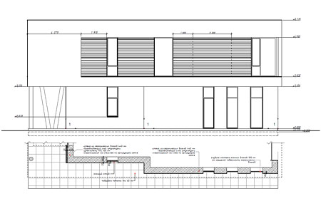
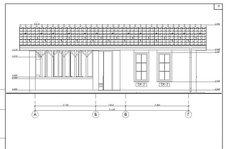
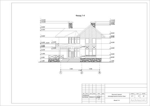
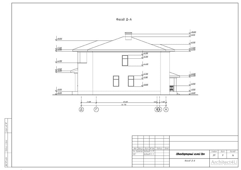
- фасады
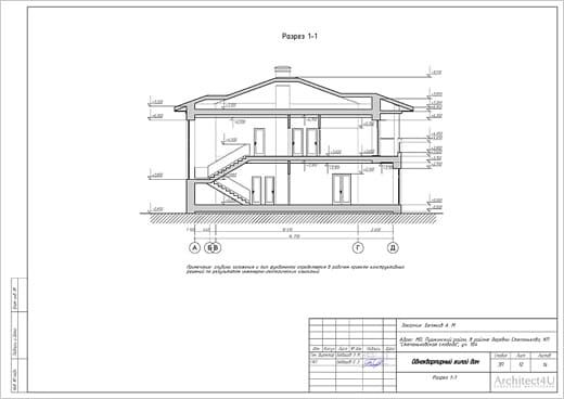
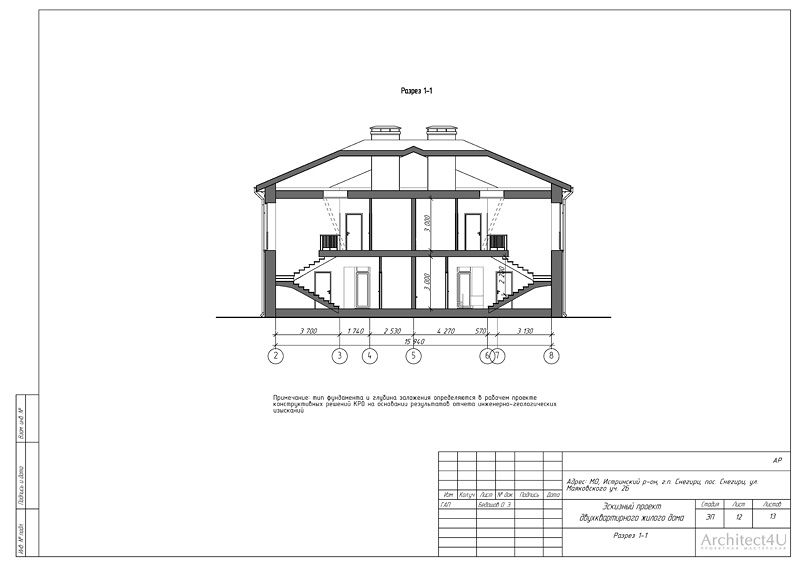
- разрезы
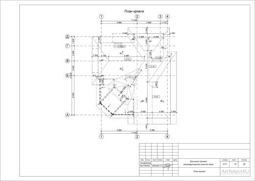
- план кровли
- компьютерная 3D визуализация
Пример расширенного эскизного проекта
Пример базового эскизного проекта
Помогает найти лучшее объемно-планировочное решение и увидеть объект с новыми фасадами еще до начала строительных работ. Является утверждаемым (согласовываемым) этапом. Служит основой для дальнейшего рабочего проектирования архитектурных, конструктивных и инженерных решений. Итоговый эскизный проект базовой комплектации содержит чертежи с детальными размерами и привязками стен, перегородок, оконных и дверных проемов. В стоимость включена 3D визуализация в ч/б графике. Данный проект также потребуется для получения разрешения для строительства. Предоставляется электронная версия проекта в формате PDF + 2 печатных экземпляра формата А3.
Пример упрощенного эскизного проекта
Стоимость изготовления эскизного проекта
Ниже показана ориентировочная стоимость разработки эскизного проекта дома общей площадью 100 кв.м. в разных комплектациях. Не является публичной офертой. Точная стоимость определяется на основании техзадания на проектирование. Для расчета стоимости проекта ЭП введите общую (поэтажную) площадь дома
Расчет выполнен на основании цен на проектирование, действующих с 01.01.2025 по 31.12.2025
- Базовый эскизный проект
- 77 000 руб.
- 3D визуализации
(подача в ч/б графике)
на планах указаны все размеры и привязки на фасадах
все высотные отметки
2 печатных экземпляра проекта формата А3 + электронная версия (PDF) - Образец
- Срок изготовления:
от 1 - 1,5 месяцев - Оплата: 50% - аванс,
25% - после утверждения варианта планировочных решений и фасадов,
25% - по завершении - Заказать
- Расширенный эскизный проект
- 99 000 руб.
- 3D визуализации (фотореалистичные) , дизайн экстерьера, подбор фасадных материалов по актуальным каталогам производителей
фасады дома в цвете
на планах все размеры и привязки на фасадах
все высотные отметки
2 печатных экземпляра проекта формата А3 + электронная версия (PDF) - Образец
- Срок изготовления:
от 1,5 - 2 мес - Оплата: 50% - аванс,
25% - после утверждения варианта планировочных решений и фасадов,
25% - по завершении - Заказать
Исходные данные для проектирования
Для того, чтобы архитектор смог начать работу над проектом вашего дома необходимо предоставить исходные данные для проектирования. Их немного, но они обязательны. Прежде всего скачать и заполнить техзадание. Также для работы будут нужны данные о вашем земельном участке - геодезическая топосъемка з/у в форматах PDF и DWG + ссылка на публичную кадастровую карту.
Архитектору для выполнения работ нужно увидеть окружение вашего земельного участка, поэтому при дистанционном (удаленном) проектировании - файлы с фото и видеопанорамой 360 направляйте на нашу электронную почту info@architect4u.ru, либо мессенджер.
Скачать образец ТЗ и пример топосьемки можно по ссылкам ниже.
Образец техзадания и пример топосъемки
Индивидуальный или готовый типовой?
Если рассматривать два варианта эскизного проекта - индивидуальный и готовый типовой с точки зрения цены, то второй вариант выглядит более заманчиво, так как дешевле. Но часто во внимание не принимается тот факт, что типовые решения в проекте необходимо привязать к земельному участку определенной формы и ориентацией по сторонам света (от этого будет зависеть правильная инсоляция жилых помещений дома).
Далеко не всегда в типовом проекте устраивает все и он не потребует никаких изменений. Также иногда встречаются ошибки конструктивного характера - не продумана несущая система здания, лестницы в доме не удобны к использованию, помещение котельной не соответствует требованиям нормативных документов и т.д. От объема этих корректировок зависет итоговая стоимость, которая в отдельных случаях может быть сопоставима со стоимостью индивидуального эскизного проекта.
Готовый можно приобрести за несколько дней. Изготовление индивидуального эскизного проекта дома занимает от 1 месяца и более. Корректировки и адаптация готового эскизного проекта могут занять до 1 месяца. Общие временные затраты будут зависеть от того, есть ли исходники типового проекта (как правило их при продаже не предоставляют) и какой объем изменений и корректировок необходим в целом.
Покупая готовый типовой эскизный проект дома, выбирают наиболее подходящее. Индивидуальный же подход в проектировании учитывает потребности заказчика в полном объеме и без компромиссов - стилевые, объемно-планировочные, функциональные, экономические и др.
Проектирование и строительство
Сравнительный анализ материальных затрат
Как правило, стоимость качественного рабочего проекта в полной комплектации в процентном соотношении составляет порядка 5% от стоимости строительства "коробки" дома. Эскизный проект - 0,8%, архитектурный проект - 0,9%, проект конструктивных решений - 1,4%, проекты инженерных решений - 1,9%.
Стоимость разработки полного рабочего проекта (АР, КР + Инженерия) для строительства индивидуального дома можно узнать на странице онлайн расчета
Техзадание и пример эскизного проекта доступные для скачивания
Файлы, доступные для свободного скачивания
Есть эскизный проект дома, необходим дизайн фасадов?
Часто бывает, что уже имеется эскизный, либо архитектурный проект коттеджа, но отделка фасадов в нем решена условно.
На странице дизайн фасадов мы собрали подробную информацию о данной услуге - из каких этапов состоит индивидуальное проектирование фасадов, в чем заключается работа архитектора, сколько стоит. Посмотрите примеры проектов и ответы на часто задаваемые вопросы. Можно сразу перейти в расчет стоимости
Как заказать проектирование
Заказать индивидуальное эскизное проектирование не сложно. Ознакомьтесь со схемой работы и этапами строительного проектирования дома. Направляйте заполненное техзадание на электронную почту info@architect4u.ru, либо посредством мессенджера. С вами свяжется архитектор для уточнения деталей и подготовки коммерческого предложения. После его согласования и подписания договора, мы можем приступать к работе.




















































