Проект электроснабжения - ЭОМ
Если возникла необходимость в проекте электроснабжения, то мы можем помочь. Профессионально решаем любые поставленные задачи инженерного проектирования систем внутреннего электрооборудования и электросовещения для следующих объектов:
- Нежилые помещения в зданиях общественного, промышленного назначения
- Загородные жилые дома, коттеджи, таунхаусы, бани, летние кухни и др.
- Нежилые помещения в жилых многоквартирных домах
- Квартиры (жилые помещения)
Разработка рабочего проекта электроснабжения происходит в строгом соответствии с техническим заданием на проектирование и ТУ от эксплуатирующей, управляющей организации. Четкое соблюдение нормативной документации (ГОСТ, СНиП, СП и др.) обеспечивает нашим инженерным проектам быстроту прохождения согласований, комфортные закупки для подрядчика, понятный и предсказуемый монтаж с соблюдением обозначенных сроков.
Общая информация
Проект
Цены и сроки
Когда проект необходим
Необходимость проекта электрики (внутреннего силового электроснабжения помещения, здания, жилого дома) обусловлена рядом причин. Если кратко, то к ним можно отнести:
- Новое строительство (возведение зданий, частных жилых домов)
- Реконструкция или ремонтные работы, в том числе с увеличением нагрузки на питающую сеть
Даже если брать во внимание небольшие объекты - квартиры, нежилые помещения небольшой площади, проект электроснабжения даст собственнику, либо арендатору определенные выгоды и преимущества как при закупке правильно подобранных в нужном количестве электромонтажных изделий, кабелей с учетом необходимого сечения и т.д., так и выполнить монтажные работы грамотно и в срок.
И если в будущем возникнет необходимость ремонта или реконструкции, благодаря проекту, Вы легко можете его произвести. Можно взять все с запасом и без проекта, как советуют строители. Но навряд ли, они делают детальный расчет нагрузок, который делает инженер в ходе проектирования системы электрооборудования.
Исходные данные проекта электроснабжения
Для начала проектирования инженеру необходимы
Разработка рабочего проекта электроснабжения ведется на основании следующих исходных данных, предоставленных заказчиком:
- ТЗ - технического задания
- опорных чертежей в цифровом виде (файлы с расширением DWG) - актуального на момент ведения проектных работ плана нежилого помещения, либо квартиры; поэтажных планов здания или жилого дома с нанесенным расположением розеток, выключателей, осветительных приборов (светильников)
- ТУ - технических условий
Теперь поясним, что должно включать в себя техзадание на проектирование инженерного раздела проекта - силовое электроснабжение. Прежде всего инженеру необходимо знать о конструктивных особенностях объекта - из каких материалов возведены стены, перегородки, перекрытия, какую они имеют конструкцию (состав слоев - так называемый "пирог") и толщину. На предоставленных чертежах планов помещений должны быть указаны: назначения комнат (помещений) с размерами, оконные и дверные проемы с габаритными размерами и высотой от пола, высоты помещений в чистоте.
Все эти данные можно отнести к общим и основным, которые будут необходимы при заказе любого инженерного проекта. А теперь перейдем к информации, которая нужна проектировщику именно для электроснабжения.
Раздел "Силовое электрооборудование и электроосвещение"
- Акт разграничения балансовой принадлежности
- Разрешенная мощность, количество фаз
- Места установки розеток и светильников (на чертежах плана(-ов))
- Список и марка электрооборудования - электропотребителей помещения
- Место, где располагается электрический щит
- Способ прокладки проводников (скрытый вариант монтажа проводки либо открытая проводка)
Схема работы над проектом ЭОМ
Расскажем об основных этапах инженерного проектирования.
I ЭТАП
Первый этап - предпроектный, заключается в сборе и изучении предоставленных заказчиком исходных данных и составлении техзадания, подробная информация о составе которого изложена ранее.
II ЭТАП
Вторым этапом собираются (рассчитываются) нагрузки и создается оптимальная схема - как электрические потребители будут распределяться по группам. Результатом данного этапа является концепция проекта электрооборудования, которая в обязательном порядке согласовывается с заказчиком до начала работ в третьем этапе проектирования.
III ЭТАП
После окончательного подтверждения решений концепции, инженер-проектировщик может приступать к дальнейшей разработке рабочих чертежей, схем электрики, составлении ведомостей и спецификаций, необходимых для правильного выполнения закупок и монтажа. Готовый проект клиент получает либо только в электронном виде в формате PDF, либо дополнительно выпускается печатный бумажный альбом в количестве 2-х экземпляров, в зависимости от условий договора.
Проектирование в соответствии с ГОСТ, СНиП, СП
Все проекты инженерных решений систем электроснабжения выполняются в соответствии с требованиями и рекомендациями актуальных нормативных документов и государственных стандартов.
Условные обозначения
ГОСТ - государственный стандарт
СНиП - строительные нормы и правила
СП - свод правил
ПП - постановление правительства
ФЗ - федеральный закон
Состав чертежей и материалов проекта
Любой качественный рабочий проект электрики для выполнения электромонтажных работ в отдельном жилом, нежилом помещении или здании должен иметь следующий обязательный состав чертежей и текстовых данных
- Общие данные, содержащие ведомость рабочих чертежей, ведомость ссылочных и прилагаемых документов, основные технические харакетристики
- Пояснительная записка с описанием проектируемых мероприятий, питающих и групповых линий, учета электроэнергии, электроосвещения, силовых сетей, заземления, указаний к выполнению требований техники безопасности, охраны окружающей среды
- Принципиальная схема организации ЭРЩ - электрического распределительного щита
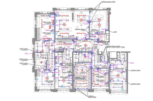
- Планы розеточной сети, выключателей, светильников с экспликацией, разбивкой по типам и группам с комментариями и пояснениями монтажа
- Решение заземления, молниезащиты (для загородных домов, отдельностоящих зданий)
- Схема уравнивания потенциалов
- Спецификация электрооборудования и материалов (ведомости для закупки)
Пример готового проекта
Внутреннее электроснабжение бани в КП Белый Берег
Сроки проектирования
Точные сроки выполнения проектных работ могут быть определены только после изучения технического задания и предоставленных исходных данных. Для ориентира - проект электроснабжения бани был выполнен за 7 рабочих дней.
Онлайн расчет стоимости
Ниже показана ориентировочная стоимость разработки полного рабочего инженерного проекта электроснабжения дома / квартиры общей площадью 100 кв.м. Не является публичной офертой. Для расчета стоимости проекта ЭОМ для вашего дома / квартиры введите общую площадь
Стоимость проектирования: 66 000 руб.
Расчет выполнен на основании цен на проектирование, действующих с 01.01.2025 по 31.12.2025
Цены
Работая долгие годы в сфере проектирования, мы стараемся удерживать комфортные для клиента цены, гарантируя при этом неизменное качество выполнения поставленных задач.
Наружные сети электроснабжения |
от 66 000 руб. за проект |
Силовое электрооборудование и электроосвещение |
для объектов от 100 м2 |
Для точного определения стоимости изготовления рабочего проекта инженерных решений силового электрооборудования и электроосвещения, вам необходимо отправить заявку на проектирование, включающую общую площадь, назначение объекта и поэтажные планы (из техпаспорта БТИ, либо архитектурного или эскизного проекта). Для этих целей можно воспользоваться как электронной почтой, так и любым из привычных мессенджеров.
Может без проекта?
Можно, конечно, проложить провода «на глазок» и надеяться, что «авось выдержит». Но такой подход напоминает игру в рулетку: вроде бы крутится весело, а вот последствия - не всегда. С проектом же вы спите спокойно, а ваша техника работает так, как задумано, а не «по настроению».
.jpg)
.jpg)
.jpg)
.jpg)
.jpg)
.jpg)
.jpg)
.jpg)
.jpg)
.jpg)
.jpg)
.jpg)
.jpg)








