Примеры проектов домов США 1920
Проект дома The JEFFERSON
The faculty of inhabitiveness (the love of one's place of birth) is developed far more in the young man or woman whose home has been one of sunshine and freedom than in those whose place of habitation has been sordid and cramped. One would naturally expect the youth from The Jefferson to reflect all of the joy and purity of a wholesome environment.

Проект дома The HOMESTEAD
Permanent and substantial beauty is expressed in every Line of The Homestead. It is typical of the oldest and best loved homes in America - homes that hold our hearts and spur our efforts toward greater achievements. Surely the comforts of such homes as The Homestead cannot pass with a single generation.

Проект дома The LEXINGTON
Spacious homes like The Lexington are usually constructed in the suburbs by those whose generous natures lead them away from the cramped and crowded districts where limited space and unlimited noises tend to choke their creative thoughts. Furthermore, The Lexington is strictly practical as well as peaceful and restful, and its dignity is undeniable in any community.

Проект дома The CHADWICK
Men change only as their environment and associates change. A good home and a good wife will enable any man to become stronger and more efficient. Any man is worthy of the highest trust who saves from his earnings sufficient to build The Chadwick, and whose life companion is in sympathy with him and his work.

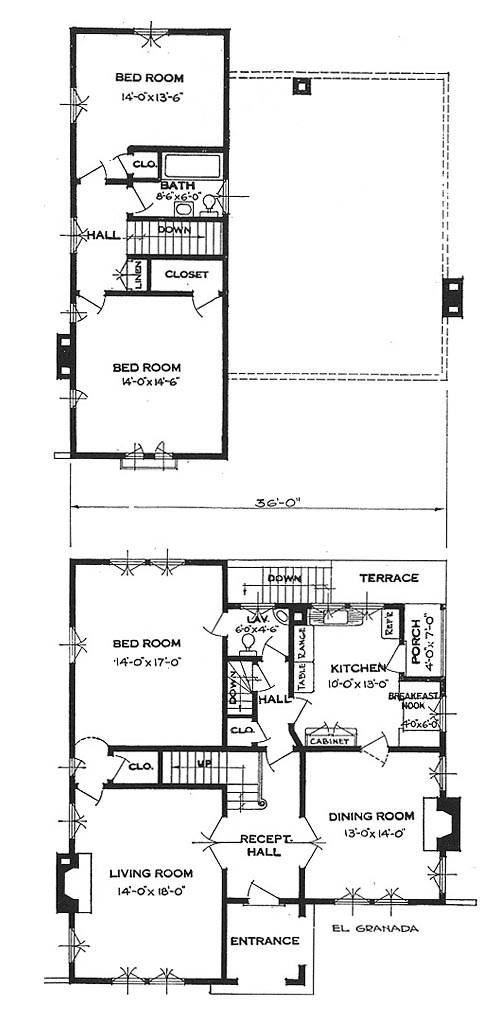
Проект дома The EL GRANADA
Selfishness seldom strangles the man whose pride and ambition lead him to build a home of The El Granada design. Pride in one's home is the fire that kindles power for success, and ambition is the invisible voice that ever calls man successward. It is home and its accompanying sentiments that develop character of sterling quality.