Индивидуальный жилой дом в рекреационном комплексе «Спутник»
Архитектурное, объемно-планировочное и функциональное решения
Новый рекреационный комплекс «Спутник» расположен рядом с дорогой Звенигород - Истра в районе деревни Красновидово Истринского района Московской области. Он находится всего в 29 км от МКАД по Новорижскому шоссе.
Инфраструктура комплекса располагается на общественной территории площадью в 15 га. Ее составляют два больших живописных природных пруда с парком. Вокруг одного из прудов организованы площадки для рыбной ловли и пляж для купания. Другой пруд, с поросшими лесом берегами и островом, оставлен в первозданном виде, как место для прогулок. Поселок частично прилегает к лесу.
Основная планировочная концепция рекреационного центра - это организованный семейный отдых с постоянным и временным проживанием. Для этого здесь созданы все условия: можно заниматься спортом, рыбной ловлей, купаться и загорать, гулять по парку - и все это, не выходя за пределы охраняемой территории комплекса.
Часть территории комплекса занимают четыре сблокированных дома-таунхауса. Половина каждого дома представляет собой автономное полноценное жилье, рассчитанное на одну семью. При желании после незначительной перепланировки можно объединить обе части и использовать весь дом для проживания одного владельца. К сгруппированным по два, примыкающим вплотную друг к другу участкам, ведут подъездные дороги. Участки, прилегающие к дому, имеют площадь 15-20 соток.
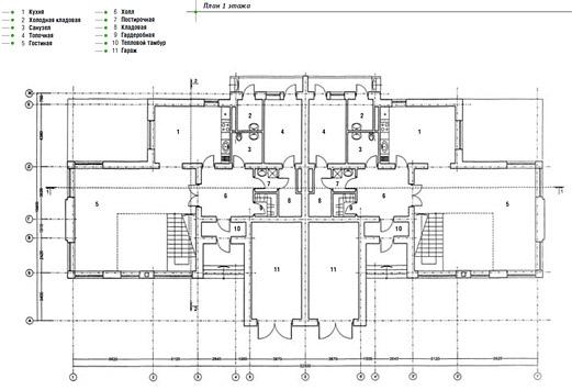
Здание представляет собой 2-этажный блокированный дом. Он состоит из двух симметричных блок-секций. Каждая секция имеет независимый вход. На первом этаже секции блокируются нежилыми помещениями: гаражом, кладовой и топочной, на втором этаже - санузлом, спальней и балконом. Входы в секции разнесены и находятся за воротами гаражей.
Благодаря тому, что на первом этаже блоки имеют смежные топочные, удалось избежать прокладки дополнительных газопроводов по дому. В основу планировки положен принцип рационального расположения помещений. Из холлов на первых этажах можно попасть в любую комнату. Лестница на второй этаж расположена в двухсветной гостиной.


Первый этаж возвышается над уровнем земли на 60 см. Вход в дом заглублен на 2,5 м, что защищает крыльцо от ветра и непогоды. Небольшой «тепловой» тамбур предваряет вход в холл. Его устройство препятствует проникновению в дом холодного воздуха и потерям теплого. Просторная гардеробная (2,5 м2) при входе в холл служит одновременно шкафом для верхней одежды. К ней примыкает постирочная. Из постирочной, пройдя через кладовую, можно попасть в топочную, имеющую отдельный выход на улицу. Рядом с ней расположена «холодная кладовая» с умывальником и выходом на улицу. Это помещение можно использовать как подсобное при садово-ландшафтных работах на участке.
Из холла можно пройти в кухню-столовую площадью 21 м2 и просторную двухсветную гостиную (52,5 м2). Кроме того, гостиная связана открытым проемом с кухней-столовой. Вдоль стены, смежной с входной группой (крыльцом и тамбуром), в гостиной сооружена двухмаршевая лестница, ведущая на второй этаж, расположенный на отметке 3,3 м. В наружной стене гостиной предусмотрен дымоход для камина.
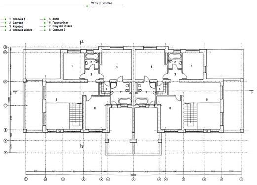
Лестница приводит на второй этаж в большой холл (22 м2) с выходом на террасу площадью 20 м2. Помимо того, на втором этаже находятся три спальни, площадью 12,5 м2; 16,3 м2 и 21,1 м2, с примыкающими к ним двумя ванными комнатами. Одна из ванных, большая по площади (26,7 м2), имеет выход на заглубленную террасу, расположенную над гаражом.
Малый уклон и большие выносы кровли создают образ, напоминающий архитектуру Ллойда Райта. Пластичность объему здания придают глубокие балконы, лоджии второго этажа и колонны, на которые опираются свесы кровли над ними. Выложенные облицовочным кирпичом под руст стены контрастируют с витражами гостиной, простирающимися на всю высоту дома. Необычно и цветовое решение, сочетающее светло-желтые поверхности стен и ярко-голубую мягкую черепичную кровлю.
Проектом предусмотрено благоустройство и озеленение территории без нарушения поверхностного слоя, что позволяет предохранить почву от эрозии.
Несущие и ограждающие конструкции
Фундаменты здания сделаны из забивных свай. Этот способ возведения фундамента значительно уменьшает объем земляных работ, снижает расход материалов и устраняет необходимость подготовки основания и водопонижения на участке. Сваи погружаются в грунт в готовом виде.
Сверху сваи по выровненным оголовникам связаны между собой монолитным железобетонным ростверком шириной, равной толщине стены, и высотой 40 см. Свайные фундаменты являются одним из наиболее прогрессивных видов конструкции нулевого цикла. В здании есть неглубокое техническое подполье, отметки пола которого совмещены с верхом ростверка под наружные и внутренние стены. Прочность соединения конструкции ростверка со сваями обеспечена заделкой торцов свай в бетон ростверка.
Перекрытия выполнены из сборного железобетона с монолитными участками.
Стены здания толщиной 640 мм сложены из пустотелого кирпича и защищены от теплопотерь утеплителем. Слой утеплителя URSA толщиной 120 мм располагается между двумя рядами кирпича. Наружный слой кирпича - 120 мм, внутренний - 380 мм. Снаружи стены выложены облицовочным кирпичом.
Оконные проемы заполнены деревянными рамами с двухкамерными стеклопакетами. Крыша дома имеет уклон менее 30°. Бытует мнение, что для уменьшения снеговых нагрузок, а в Подмосковье нормативная снеговая нагрузка составляет более 100 кг/м2, следует проектировать крыши с крутыми скатами, имеющими уклон более 30°. При этом известно, что наибольшее количество снега скапливается на заветренных скатах крыш, имеющих уклон 30°, так как с наветренного ската снег сдувается ветром, переносится через конек и отлагается на заветренном скате. Вот почему на крышах, уклоны которых значительно больше или меньше 30°, снега будет немного, так как при крутом уклоне он легко сползает с крыши, а при малом - сдувается ветром.
Конструкция кровли представляет собой систему деревянных стропил, уложенных на металлический каркас. Для покрытия кровли использовалась мягкая черепица TEGOLA. Этот кровельный материал состоит из стекловолокна, битумного слоя и базальтового гранулята. Благодаря своим исключительным армирующим свойствам, стекловолокно лучше всего подходит для сцепки битумных слоев. Для производства мягкой черепицы TEGOLA используется натуральный окисленный битум, наиболее подходящий для российских климатических условий. Он обеспечивает максимальную стойкость черепицы к температурным перепадам и облучению ультрафиолетом. Базальтовый гранулят придает черепице необычайно насыщенный, стойкий цвет и предохраняет слой натурального битума от вредного воздействия ультрафиолетовых излучений и механических повреждений.
Несмотря на то, что мягкая черепица легче керамической в 5 раз, несущая конструкция кровли должна иметь значительный запас прочности. Для монтажа мягкой черепицы необходимы сплошная обрешетка из досок или фанеры, а при малых уклонах требуется применение дополнительной гидроизоляции. Кроме того, подкладочный гидроизоляционный слой укладывается в ендовах, в карнизных свесах, в местах примыкания конструкций.
При устройстве кровли из мягкой черепицы основание должно быть неподвижным, прочным, гладким, сухим и обязательно вентилироваться. Сплошная обрешетка удобна при монтаже и служит хорошим дополнительным тепло- и звукоизолятором. Для получения сплошной обрешетки к стропилам вплотную крепится просушенная, прямая пиленая или обрезная доска. Особенности технологии монтажа зависят от температуры наружного воздуха, при которой производятся работы. Наиболее благоприятная температура для монтажа около +6°С.
Элементы кровельного покрытия укладываются внахлест, снизу вверх. Для надежности крепления каждый следующий элемент крепится к предыдущему кровельными оцинкованными гвоздями.
Все деревянные конструкции антисептированы и покрыты огнезащитными составами.
Технологии внутренней отделки и инженерное оборудование
Здание подготовлено под чистовую отделку. Электроснабжение осуществляется от наружных сетей напряжением 380/220 В от системы с глухо-заземленной нейтралью трансформатора. Для приема и распределения электроэнергии в здании на 1-м этаже устанавливается вводно-распределительный щит с автоматическим включением на вводе. Учет электроэнергии осуществляется счетчиком. Электроосвещение и распределительная сеть выполнены проводом с медными жилами в поливинилхлоридных и металлических трубах.
Стальные трубопроводы горячего и холодного водоснабжения прокладываются с уклоном 0,005 в сторону водоразборных точек. Достоинства стальных труб - прочность, низкий температурный коэффициент линейного расширения, дешевизна. К недостаткам можно отнести большой вес, трудность транспортировки и обработки. Внутренняя поверхность у стальных труб шероховатая, поэтому их пропускная способность ниже, чем у медных или полимерных, при одинаковом внутреннем диаметре. Однако главный недостаток стали - под- верженность коррозии. Для замедления этого процесса используют цинковое покрытие, что продляет срок службы коммуникаций, но не избавляет от коррозии полностью. У стальных труб высокая теплопроводность. В случае их использования в отопительной системе - это свойство считается положительным, но при транспортировке холодной воды становится недостатком. Трубы покрываются конденсатом, из-за чего разрушается прилегающая к ним стена. Чтобы избежать этого явления, можно воспользоваться защитными трубками из вспененного полиэтилена или каучука, надеваемыми на стальную трубу. Срок службы стальных труб, используемых для водоснабжения и отопления - 30-40 лет.
Система водоснабжения оснащена водомером со счетчиком учета воды ЕТК-15, установленном в отапливаемом техническом подполье.
Источником теплоснабжения является отопительный комбинированный котел, размещенный в помещении котельной на 1-м этаже. Котел может работать на газе или от электроэнергии. Теплоноситель системы отопления - вода с температурой 70°С. Система отопления - однотрубная, тупиковая с нижней разводкой магистралей, П-образными стояками и насосной циркуляцией.
Энергосберегающие технологии загородного дома
Дом имеет утепленные кирпичные стены, что позволяет экономить средства на отоплении. Блокировка здания по одной из сторон уменьшает теплопотери по общей стене и повышает тепловую инерцию здания.
Генеральный проектировщик: архитектурное бюро «B.N. ingineering»