Дом для архитектора

Архитектурное, объемно-планировочное и функциональное решения загородного дома
Этот дом архитектор, конструктор, дизайнер и предприниматель Игорь Есинеев строил для себя. Все, начиная от самого здания и заканчивая мебелью и светильниками, выполнено по его проектам и эскизам на собственном производстве. Именно такой путь Игорь Есинеев считает единственно правильным — «гармоничный дом, где все, от фасада до предметов обстанов ки, неразрывно связано».
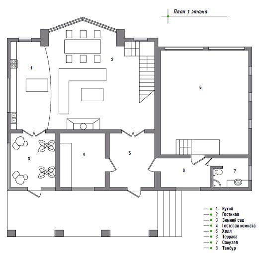
В ближнем Подмосковье на ровном участке в 30 соток кроме самого двухэтажного дома расположены русская баня, беседка и бассейн. В дом можно попасть двумя путями: через главный вход, ведущий в холл, и через зимний сад. На первом этаже, помимо этих помещений, расположены кухня, гостиная, гостевая, ванная комнаты и крытая терраса. Кухня приподнята на одну ступеньку, поскольку здесь смонтирован водяной теплый пол. Кроме того, этот подиум позволяет четко зонировать часть пространства первого этажа на гостиную и кухню.

Уровень пола в гараже ниже пола первого этажа на 60 см. Так что можно считать, что гараж занимает цокольный этаж.
На втором этаже - спальни хозяев, гардеробная, большая ванная комната, а непосредственно над гаражом - кабинет хозяина. Холл второго этажа создает дополнительное прост- ранство для отдыха. Цветовую гамму интерьера составляют естественные цвета отделочных материалов — оттенки разных пород дерева, металл, камень. Белый цвет оштукатуренных стен подчеркивает выразительность «цветных» деталей.
С учетом размера окон и их ориентации по сторонам света, для каждого помещения был создан свой тип светильников из металла: большая люстра с лампами направленного света для столовой-гостиной, низко висящие люстры для кабинета, настенные бра из срезанных под острым углом алюминиевых труб.
Особенность этого дома в том, что он объединяет под одной черепичной крышей два объема, построенных из абсолютно разных по характеристикам материалов — кирпича и дерева. Одна, жилая часть дома, представляет собой классический сруб, а вторая сложена из кирпича. В деревянной части, где создается наиболее комфортный микроклимат, находятся жилые помещения и зоны, где обитатели дома проводят большую часть времени, а в кирпичной — ванные комнаты и служебные помещения.
Несущие и ограждающие конструкции дома
Фундамент дома блочный и уходит на глубину 3,2 м. Гидроизоляция фундамента — рулонная и обмазочная. В подвале устроена мастерская, где и готовились все строительные материалы для возведения дома. Кроме мастерской в подвале размещаются котельная, подсобные помещения и яма для гаража.
Одна половина дома бревенчатая, другая — кирпичная, облицованная природным камнем. Такую конструкцию архитектор выбрал сознательно, хотя обычно стараются избегать сочетания под одной крышей таких разных в «поведении» материалов — ведь дерево со временем дает усадку, а кирпич — нет. Исходя из собственного опыта работы с деревом и принимая во внимание расчеты, приведенные в специальной литературе, была определена максимальная усадка деревянного сруба — 250 мм. И именно на такую величину спустя два с половиной года, пока строился дом, опустилась крыша.
Для того чтобы ее конструкция не повредилась в результате таких значительных подвижек, в качестве покрытия кровли была выбрана цементно-песчаная черепица BRAAS, материал, который может пластично следовать за изменениями положения стропил. Изготовленная из чистого природного сырья черепица — экологически чистый, жаростойкий, прочный, безупречный в эстетическом отношении и очень надежный кровельный материал для скатных крыш.
Кровля, составленная из мелкоразмерных пластин, как чешуя покрывающих несущую конструкцию крыши, «приспосабливается» к ее деформациям при осадке здания, температурных пере- падах, ветровых нагрузках и т.д. Зазоры- компенсаторы в замках черепицы обеспечивают ей некоторую подвижность, а также способствуют проветриванию конструкции крыши и удалению влаги, конденсирующейся в ее толще. При этом черепичная кровля, уложенная по реечной обрешетке, способна сама выдерживать высокие нагрузки, не требуя устройства сплошного дощатого настила.
Тяжелая черепичная кровля стабилизирует крышу, гасит шум дождя и ветра. Благодаря большой тепловой инерции, она, нагреваясь днем на солнце, после его захода медленно и долго отдает накопленное тепло, создавая под кровлей воздушный поток, проветривающий и просушивающий конструкцию крыши. Сруб из сосны привезен из Тверской области, от частного мастера. Причем, можно было выбрать лес самому, на делянке — это был горельник, уже сухой лес. Диаметр бревна достигал 30—40 см. Поскольку Игорь Есинеев сторонник естественных материалов, швы между бревнами конопатили паклей. Бревна только окорили, так, чтобы не повредить защитный слой из луба, который отлично предохраняет древесину от любых атмосферных воздействий. Тем не менее, дополнительно была проведена пропитка поверхности бревен лазуролом, отечественным аналогом пинотекса, который сохранил естественный золотистый оттенок древесины.
Для предохранения стен от растрескивания, в переходах из кирпичной части дома в деревянную устроены шлюзовые щели, в которых установлены пластиковые заглушки. Располагаясь над дверными коробками, между листами гипсокартона, они препятствуют появлению трещин.
Стены сложены в два кирпича — 510 мм и облицованы снаружи песчаником по цементно-песчаному раствору. Каменные плиты привезены из Ростова-на-Дону и на месте распилены по нужному размеру. Внутри стены оштукатурены.
Балкон, на который можно выйти из спальни на втором этаже, выполнен из лиственницы, пропитанной лазуролом. Выступающие части деревянных конструкций представляют собой обычные бревна, которые облицованы щитами из досок. Так же — клееными щитами — оформлены балки внутри дома. Такой метод декоративного оформления бревен создает иллюзию использования клееного бруса. Дом имеет большие витражи, изготовленные, как и окна, на заводе МОСМЕК из алюминиевого профиля, с двойными стеклопакетами.
На участке устроен открытый бассейн глубиной 2 м. Чаша бассейна — бетонная ванна, армированная каркасом, представляющим собой конструкцию, состоящую из листов черного металла. Толщина бетонных стен 400 мм.
Утеплитель из пенополистирола, уложенный по всему периметру стен и под днищем бассейна, позволяет долго сохранять комфортную для купания температуру воды. По словам хозяина, в нем можно купаться с апреля по октябрь. Конструкция металлического каркаса дает гарантию, что чаша бассейна не протечет даже при разрушении бетонной конструкции. Бассейн облицован плиткой BISAZZA.
Технологии внутренней отделки и инженерное оборудование
Потолки первого этажа и подвала — подвесные, выполненные из гипсокартона. При монтаже между стеной и подвесным потолком оставлена щель (небольшой отступ), для того чтобы не была заметна кривизна бревен. За подвесным потолком, по периметру, расположена скрытая подсветка.
Кухня выполнена по эскизам архитектора специалистами фирмы «Констформ». Пространство кухни отделено от гостиной ажурной реечной перегородкой.
Лестницы изготовлены из разных материалов. Так, лестница, ведущая из гостиной на второй этаж к спальням, — из лиственницы. Ступени склеены из отдельных брусков. Это очень прочная и надежная конструкция, так как отдельные плашки выгибаются в разных направлениях, нивелируя искривления друг друга, что обеспечивает стабильность всего изделия. Сту- пени покрыты устойчивым к истиранию яхтенным лаком.
Несущую основу лестницы представляет собой закрепленный в стене швеллер, к которому болтами крепятся швеллеры сечением 60 мм. В каждой ступени имеется паз для установки на швеллер. Ступень закрепляется на нем болтами, а сверху место монтажа заклеивается деревянной рейкой. В результате создается иллюзия, что ступени висят в воздухе.
Ощущение легкости конструкции усиливается прозрачным ограждением из закаленного стекла толщиной 10 мм. Стекло спускается ниже ступеней, а поверх них, на стекле, смонтированы накладки из дерева. Таким образом, стекло как бы прорезает ступени насквозь. Стеклянные листы отполированы по кромке.
Ступени небольшой лесенки у кабинета выполнены из триплекса. Края стеклянных плит заведены в бетонные борта. Бетонные элементы облицованы нержавейкой. Участок стены за лестницей облицован полированной нержавейкой, отражающей свет, поэтому кажется, что ступени светятся.
Полы и стены в ванной облицованы плиткой, имитирующей мозаику.
Мебель в гостиной изготовлена частично из фанеры, облицованной шпоном так называемой «пламенеющей» березы, частично из стекла и металла.
Энергосберегающие технологии загородного дома
Водоснабжение дома осуществляется при помощи артезианской скважины и колодца. Причем вода из колодца используется как питьевая, так как она, в отличие от артезианской, не течет по железным трубам, которые ухудшают вкус воды.
Для канализации используется емкость-септик из нержавейки. В подвале установлен двухконтурный котел Buderus 215 на 55 кВт. Его мощности хватает и на подготовку горячей воды, и на теплые полы в кухне, зимнем саду, ванной и санузлах, и на отопление.
Радиаторы алюминиевые, соответствующие общему стилю. На случай перебоев с подачей электроэнергии установлен трехфазный генератор Honda.
Камин выполнен по эскизам архитектора из кирпича, а затем облицован песчаником и частично декорирован нержавейкой. Он утоплен в деревянную стену так, что, с учетом противопожарных мероприятий и улучшения теплоизоляции, по его контуру оставлен зазор шириной 100 мм, который закрыт рейкой.
Рядом с камином со стороны гостевой комнаты сложена печка. Камин и печь имеют раздельные дымоходы, так как дымоход камина должен быть прямоточным, а у печки дымоход коленчатый. Печка — незаменимый элемент в отоплении дома, так как в случае отключения электричества, что часто случается за городом, она является единственным источником тепла.
Генеральный проектировщик: ООО «КОНСТФОРМ»
Автор проекта: архитектор И. Есинеев