Проект лестницы в квартире
Информация прежде всего будет интересна обладателям двухуровневых квартир, перед которыми стоит задача изготовления лестницы по индивидуальным эскизам и чертежам.
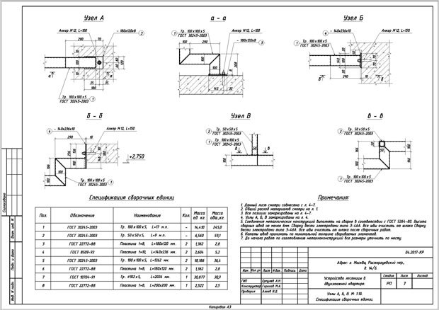
На данной странице сайта вы можете ознакомиться с составом проекта конструктивных решений металлической лестницы в квартире в г. Москва, Расторгуевский переулок - оценить уровень проработки, посмотреть детальность чертежей, получить консультацию архитектора, либо конструктора.
Что входит в состав проекта конструктивных решений лестницы в квартире
Ниже приводим список, что обычно должен включать в себя данный проект.
Требуемый состав проекта обсуждается с заказчиком и фиксируется в техзадании.
- титульный лист (обложка)
- содержание (ведомость рабочих чертежей конструктивного проекта)
- общие данные по проекту
- чертежи плана лестницы, план демонтажа ж/б перекрытия верхнего этажа
- аксонометрические схемы лестницы (3D)
- чертежи плана несущих металлических элементов лестницы
- аксонометрические схемы несущих элементов лестницы
- чертежи косоуров
- узлы и спецификации сборочных единиц
Пример конструктивного проекта лестницы в квартире
Вы ознакомились с составом проекта конструктивных решений лестницы в двухуровневой квартире в городе Москва
